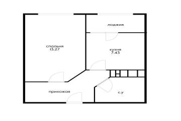
2-комнатная квартира 52 м²
Яблоновский, ул. Тургеневское Шоссе, 1Гк1
4 500 000 ₽
85 227 ₽/м²
В продаже шикарная квартира, в идеальной предчистовой отделке.
Все коммуникации: вода, свет, газ, канализация- центральные. В каждой квартире индивидуальное газовое отопление ( коммунальные платежи низкие). Дом сдан, с лифтом. Отличная придомовая территория, первый этаж коммерция: Магнит, Пятёрочка, магазины, аптека, детская и взрослая площадки для отдыха и занятия спортом. Школа №28 и дет сад- 500метров. Первый этаж коммерция. Остановка транспорта 50 метров, заходит четыре маршрутки, каждые 15 минут, до города Краснодара 15 минут езды. До центра города 5 км.
Звоните все расскажу!
Арт.1009154279

Офис на Рашпилевской, 3 этаж
+7 (989) 000-12-59Оставьте свой номер телефона, мы назначим время звонка и поможем принять решение