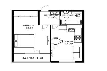
Продам однокомнатную квартиру в самом престижном ЖК «Сердце». Жилой комплекс представляет собой корпус высотой в 21–25 этажей. Дом спроектирован в стиле неоклассицизма. Фасады выполнены из вентилируемых материалов в светлых и темных тонах.
Территория комплекса закрытая, на ней ведется видеонаблюдение. Внутренний двор оснащен современными детскими площадками и спортивными зонами. На территории комплекса спроектирован ландшафтный дизайн, выполнено озеленение территории, установлен фонтан и беседка. Для владельцев автомобилей предусмотрен двухэтажный подземный паркинг. На 25 этаже находится видовой ресторан и фитнес-клуб с бассейном.
ЖК расположен в микрорайоне Школьный (ШМР). Инфраструктура развита: 2 детских сада, 3 школы, медицинские и спортивные учреждения. До городского парка «Краснодар» — 15 минут пешком.
Арт.1013582340
Оставьте свой номер телефона, мы назначим время звонка и поможем принять решение