К Вашему вниманию продаётся 3-х ком. квартира в районе ул. Петра Метальникова в ЖК Времена года-3 !
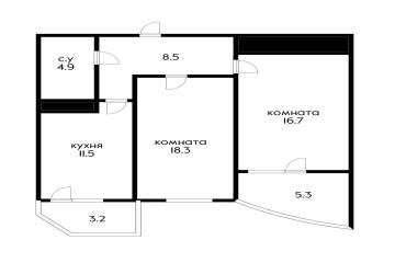
Квартира расположена на комфортном 7-ом этаже, 17-этажного монолитно кирпичного дома, продаётся в пред чистовой отделке, на две стороны , два огромных застекленных балкона 10 м2 и 9м2, которые так же можно утеплить и использовать как комнаты, просторные комнаты три комнаты по 15 м2, кухня 13 м2, большая прихожая 14 м2 и раздельный сан. узел.
Рядом с домом расположена конечная остановка трамвая, всего в 5-ти минутах ходьбы находится трамвайная остановка, а средняя общеобразовательная школа находится в 15 минутах езды или 10 минутах ходьбы до гимназии "Лидер", в 600 метрах расположен ТЦ "Стрелка", предлагающий широкий выбор магазинов, таких как семейный магазин "Магнит", "Вкусно и Точка", маникюрный салон, магазин одежды и другие, в 15 минутах езды находится мегацентр "Красная площадь", а в 5 минутах ходьбы – супермаркет "Табрис", гипермаркет Лента. красивый бульвар для прогулок и отдыха ! Прекрасное место где есть всё необходимое для комфортного проживания !
Добро пожаловать !
Арт.1013673742
Оставьте свой номер телефона, мы назначим время звонка и поможем принять решение