Продажа без процентов и комиссии от покупателей!
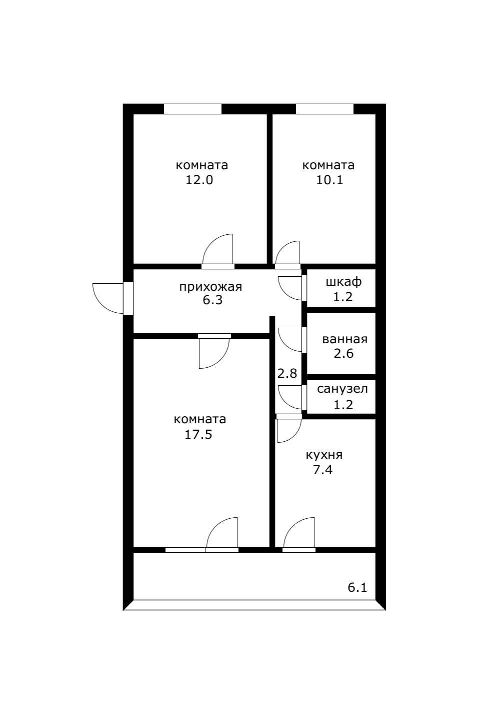
Продаётся 3 к. квартира в кирпичном доме г. Абинске (в 76 км от г. Краснодара и в 64 км до моря в г. Новороссийске). 4/5 кирп., площадью 61(67)/40/8 кв.м, в хорошем жилом состоянии. Планировка квартиры на противоположные стороны: удобная просторная прихожая, застеклённая и утеплённая лоджия с выходом из кухни и гостиной, раздельный сан/узел, кладовая, h - 2,5 м. Квартира продаётся частично с мебелью и бытовой техникой. Качественная входная мет. дверь, домофон. Три квартиры на площадке. Хороший, чистый вид на город и в сторону гор.
Тихий, зелёный, спокойный двор. Напротив дома дет/сад, остановка общественного транспорта, школа, поликлиника, необходимые магазины, парикмахерская - всё в шаговой доступности. Недалеко от центра города, городского парка и парка Победы.
Квартира готова к продаже, юридически чистые документы. Рассмотрим любые формы расчёта, в т.ч. сертификаты и ипотеку. Сотрудничаем с агентами и агентствами по недвижимости, по продаже этой квартиры.
Арт.1014809883
Оставьте свой номер телефона, мы назначим время звонка и поможем принять решение