3-комнатная квартира 95 м²
Краснодар, Карасунский внутригородской округ, мкр. Черёмушки, пер. Юшковский, 24
12 400 000 ₽
129 843 ₽/м²
Продам двухуровневую квартиру в доме на пересечении ул. Ставропольской и Таманской.
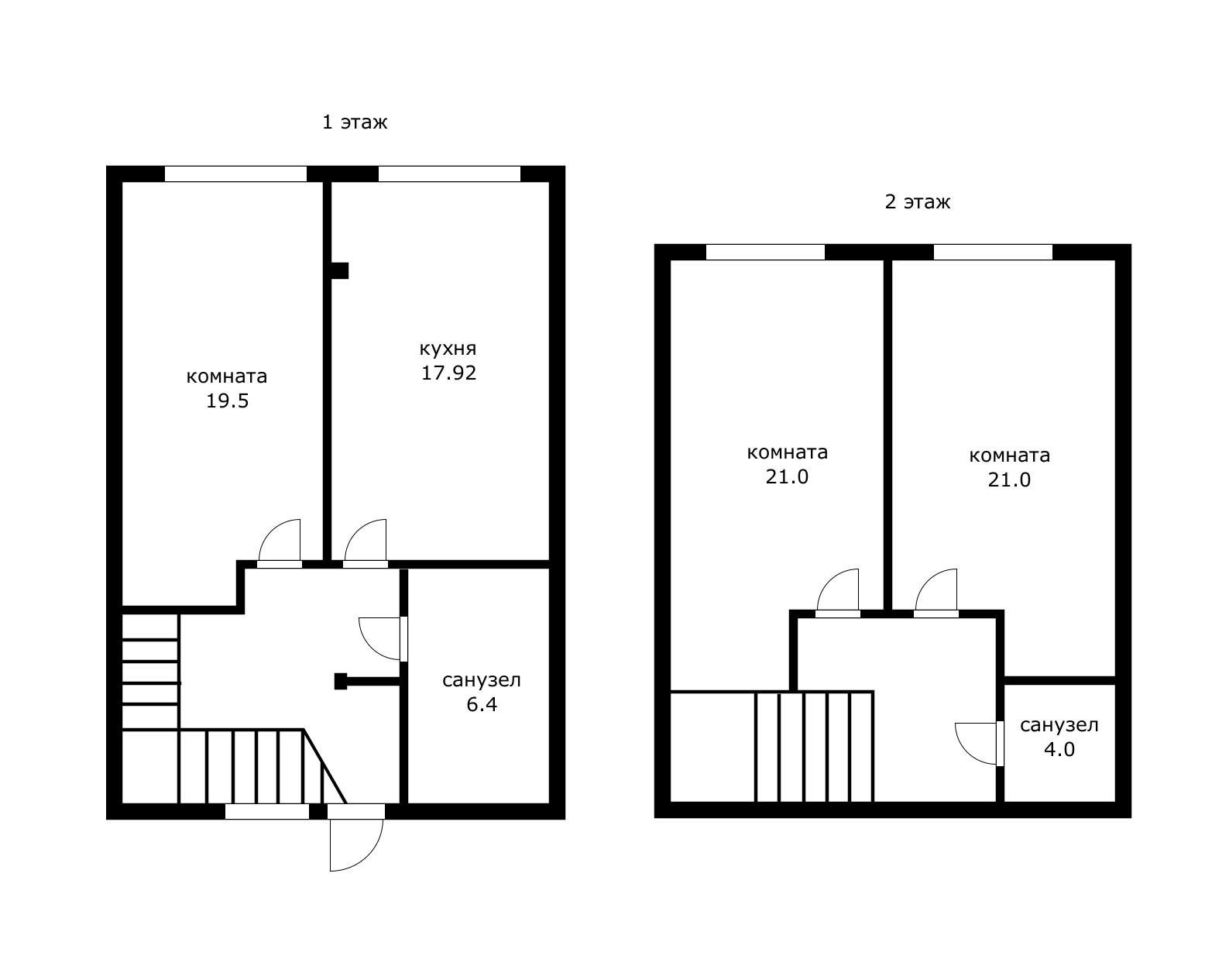
Планировка с большой кухней-гостиной, 2 санузлами. В квартире все остается мебель и техника.
Хороший новый дом. Инфраструктура в шаговой доступности: много коммерции (магазины, услуги, кафе, 2 больших рынка), частные и государственные клиники, школы и детские сады, парк и многое другое.
Любая форма расчета: материнский капитал, ипотека. Звоните!
Арт.1014990864
Оставьте свой номер телефона, мы назначим время звонка и поможем принять решение