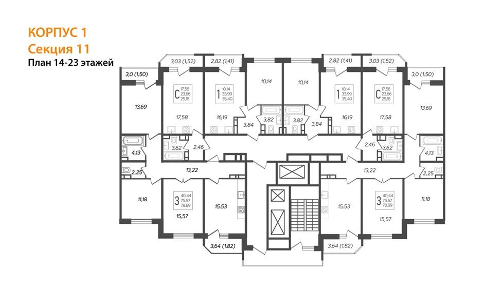
3-комнатная квартира 80 м²
Краснодар, Карасунский внутригородской округ, Камвольно-суконный Комбинат, мкр. ЖК Урал
8 974 350 ₽
111 000 ₽/м²

Краснодар, жилой комплекс Ural
10,79 км до центра

Оставьте свой номер телефона, мы назначим время звонка и поможем принять решение