Дом 345 м² + 8 сот.
Краснодар, Прикубанский внутригородской округ, Завод Радиоизмерительных Приборов, мкр. Ростовское Шоссе, пер. Арбатский, 3
31 000 000 ₽
89 855 ₽/м²
Дом, попав в который вы прекратите поиск.
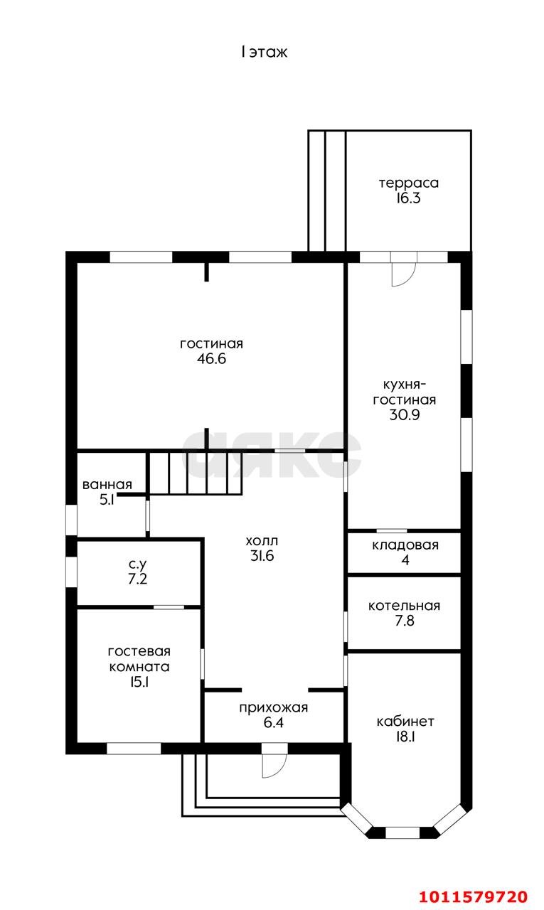
Красивый современный фасад. Качественно построенный, полностью из кирпича. Удобная планировка, просторные комнаты, огромная кухня-гостиная с выходом на террасу. Высокие потолки. Дворовая территория, которая позволит разместить все, что вы захотите. На заднем дворе построено строение в котором есть летняя кухня, санузел, сауна с выходом к бассейну. Вокруг достойные соседи.
Этот дом нужно увидеть и у вас не останется сомнений в том, что вы сделали правильный выбор! Звоните!
Арт.1011579720
Оставьте свой номер телефона, мы назначим время звонка и поможем принять решение