В продаже дом добротное строение, отличная рациональная планировка.
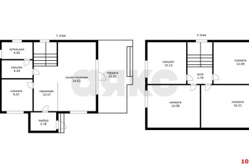
На 1-ом этаже 3 спальни, хозяйская спальня со своей гардеробной, просторная светлая гостиная, санузел, кухня-столовая с выходом на террасу. 2 -этаж свободная планировка без отделки. Под домом подвал. Дом полностью кирпичный, будут отделка из дагестанского камня.
Выполнен ремонт в едином стиле из дорогих и качественных материалов, частично остается мебель. В доме вся электрика выполнена на века, видеонаблюдение. Во дворе навес, будет положена плитка. Дом продается дополнительно еще плюс 10 соток. Участок засажен елями и фруктовыми деревьями.
Отличное предложение вы будете жить как в маленьком своем лесу. Дом достоин вашего внимания, достойные соседи. Звоните все подробности по телефону.
Арт.1011988257

Офис на Московской
+7 (989) 120-58-12Оставьте свой номер телефона, мы назначим время звонка и поможем принять решение