Коттеджный поселок «Николино Парк» в Краснодаре — это уникальное место, которое предлагает своим жителям невероятную философию свободы.
Расположенный в черте города, этот жилой комплекс позволяет сбежать от шума и суеты городской жизни. Философия «Николино Парк» — это философия мира, свободы и гармонии с природой. В коттеджном поселке имеется парковая зона с большим количеством зеленых насаждений для прогулок, езды на велосипеде и других видов активного отдыха.
«Николино Парк» спроектирован, таким образом, чтобы быть самодостаточным, но при этом обеспечивать все необходимые удобства для современной жизни. Собственная инфраструктура Николино Парк, включает зеленую зону, тенистые аллеи, прогулочные дорожки с вечерней подсветкой, теннисные корты, спортивные площадки для пляжного волейбола, мини-футбола и баскетбола. А в коммерческой зоне начнут работу кафе, магазины, аптека. А поликлиника и детский развивающий центр уже функционируют.
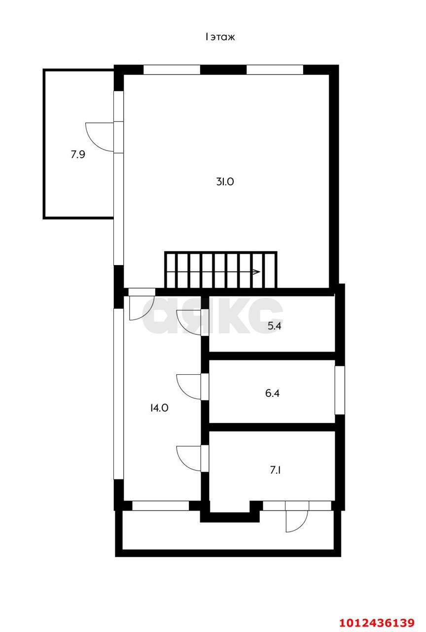
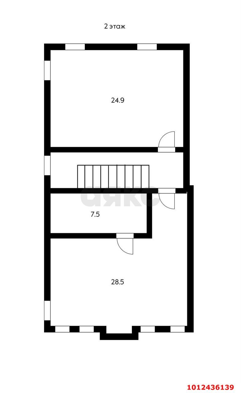
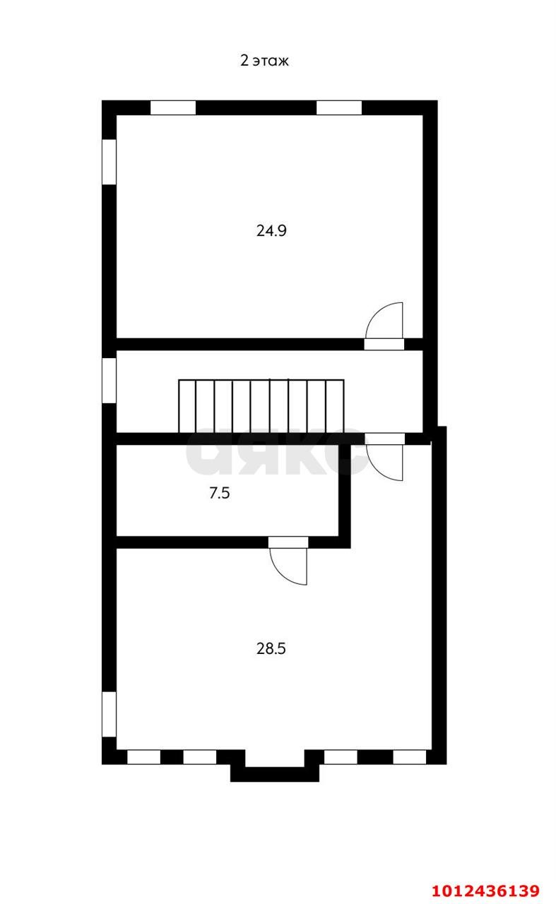
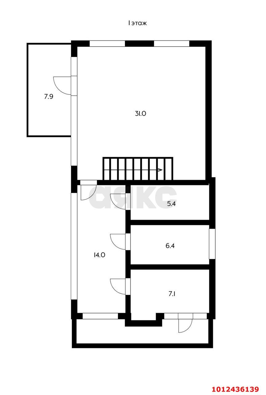
Арт.1012436139
Оставьте свой номер телефона, мы назначим время звонка и поможем принять решение