В продаже уникальная Резиденция на берегу реки Кубань с собственной набережной, вблизи объектов развитой инфраструктуры и в окружении живописной природы.
Достоинство этого дома — умеренные пространства помещений, классический дизайн интерьеров, выгодное расположение, позволяющее легко добраться до центра города Краснодара. Комфортная планировка, изысканный ландшафтный дизайн на участке, а также современное инженерное оснащение дома и участка.
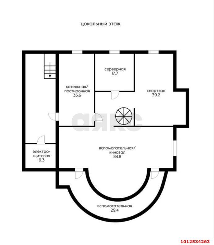
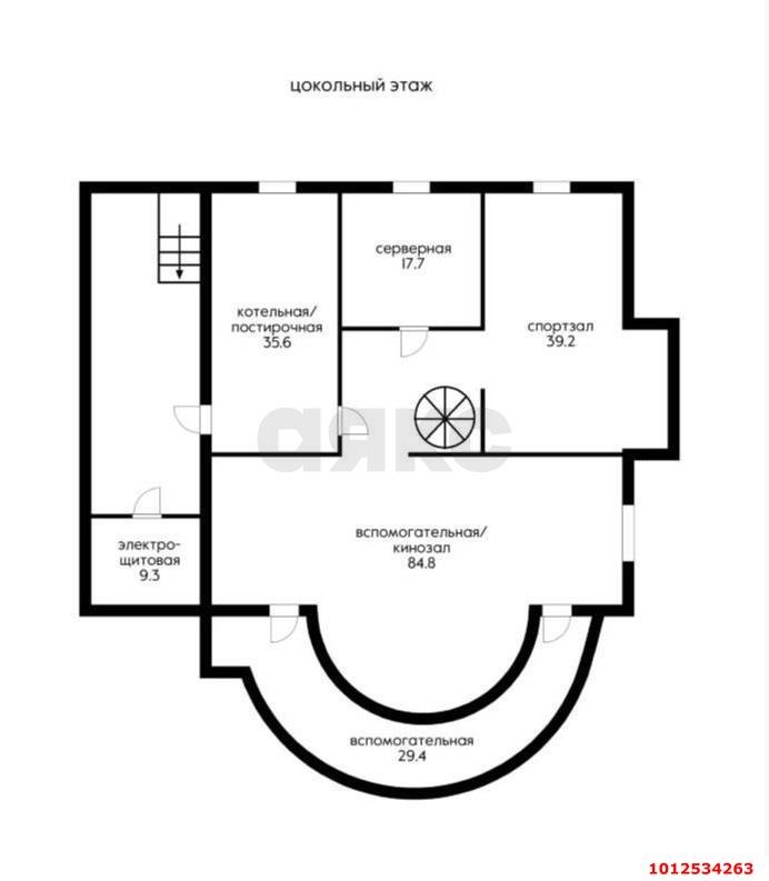
Цокольный этаж: комнаты свободного назначения (складские, гардеробные, постирочная, котельная), санузел, профессиональный спортзал, домашний кинотеатр.
1 этаж: просторная входная зона, холл, гардеробная, гостевой с/у, рабочая профессиональная кухня столовая (Италия), гостиная с камином для приема гостей, спальня с с/у и гардеробной, терраса.
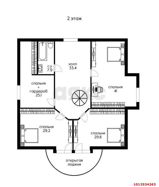
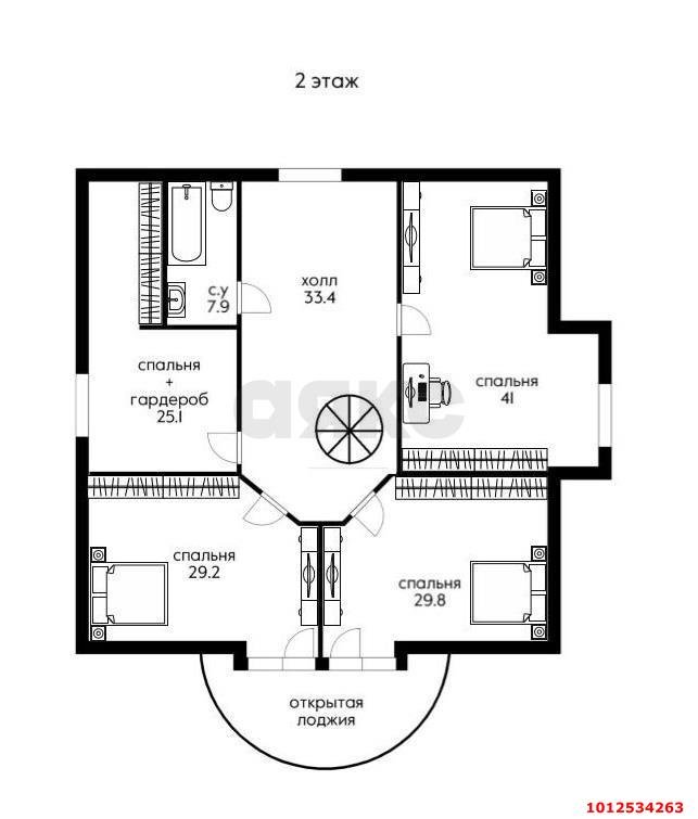
2 этаж: просторный холл, терраса, 3 спальни с гардеробными, санузел, кабинет.
На участке расположены: крытый гараж на 4 автомобиля, гостевой домик с мангальной зоной и санузлом, сауна с местом для отдыха, большой крытой терассой около бассейна, теплица, сад из плодовых деревьев, огороженная собственная набережная, видовая площадка. Премиальные соседи. Территория охраняется круглосуточно.
Практически во всём доме теплые полы, отопление на газе, скважина 230 метров, электричество 80 кВт, свой генератор на 120 кВт, септик рассчитан для постоянного проживания 8 человек – 4-х камерный ЛОС, 2 раздельных котла по 45 кВт, 65см толщина стен: кирпич клинкер 12см, пенобетон 10см, паромакс 42см, металлочерепица, дом стоит на 92 сваях потом плита – 4мм обработка резина и 5см пенополистирол, цоколь 20Х20м, дом 20Х14 м., год постройки 2016. Бытовая техника премиальных брендов.
Дом продается с мебелью по договоренности. Документы все готовы к продаже!
Покупатель не платит комиссию.
Звоните!
Арт.1012534263
Оставьте свой номер телефона, мы назначим время звонка и поможем принять решение