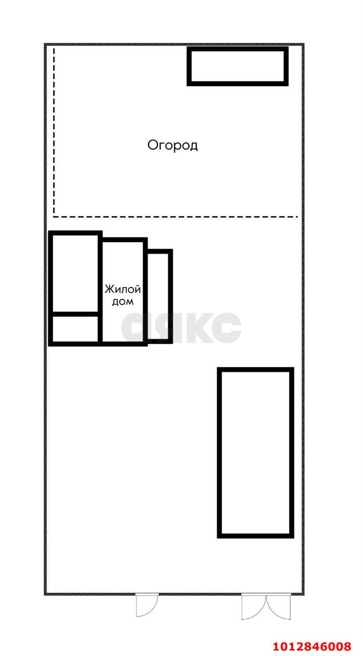
Дом 53 м² + 3 сот.
Знаменский, мкр. Карасунский внутригородской округ, ул. Берёзовая, 15
5 999 000 ₽
112 890 ₽/м²
Дом расположен участке3 сот. земли.
Строили для себя с использованием дорогих материалов. Отличная предчистовая отделка. Комфортная планировка. Кухня-гостиная с выходом на веранду.
Электричество: 15 кВт. Водоснабжение: центральное. Канализация: септик. Газ: по меже. Электрокотел.
Рядом находится новый современный парк «Родные просторы». За крупными покупками можно выехать без пробок в самый большой торговый центр "OzMall".
Однозначно это лучший дом в Знаменском.
Прописка Краснодар.
Горячее предложение. Звоните!
Арт.1012846008
Оставьте свой номер телефона, мы назначим время звонка и поможем принять решение