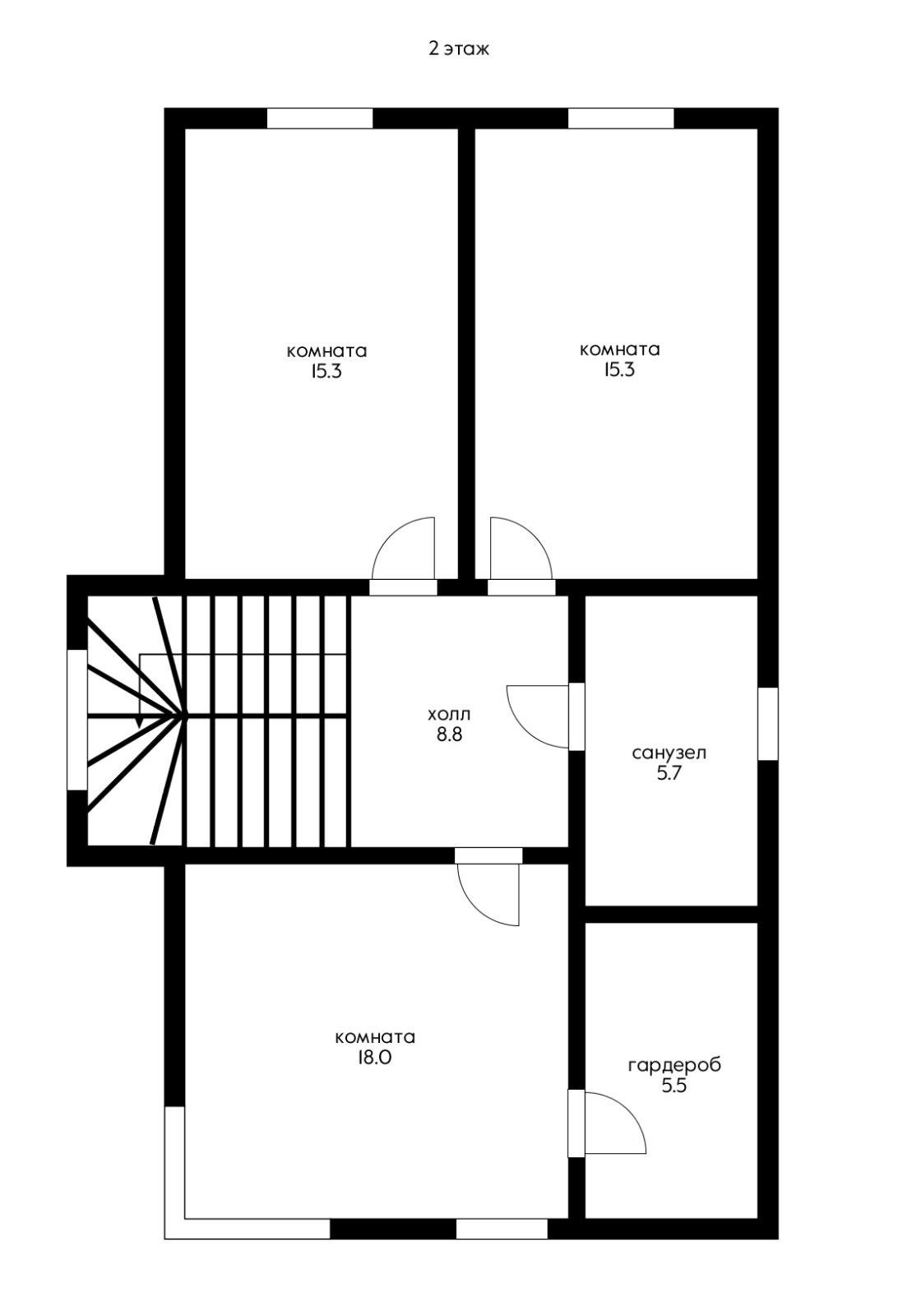
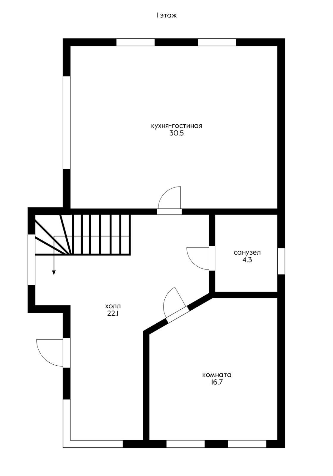
Дом 153 м² + 4.15 сот.
Краснодар, Прикубанский внутригородской округ, Калинино, мкр. Завод Радиоизмерительных Приборов, ул. Мариупольская, 2/4
24 000 000 ₽
156 863 ₽/м²
Продам дом в районе Парка Галицкого. Общая площадь 153 к.м. на земельном участке 4 сотки. Построен из кирпича и паромакса. Глубокий фундамент. Коммуникации центральные(газ, свет, вода), септик переливной 20 кубов. Во дворе можно организовать зону барбекю. По периметру стоит забор из металлопрофиля. Двор забетонирован, есть клумбы для высадки газона или деревьев.
До парка 10 минут езды на машине. В шаговой доступности школа № 66 и 102, 3 детских сада, спортивный комплекс "Екатеринодар". А так же всё для комфортной жизни.
Звоните!
Арт.1013096580
Оставьте свой номер телефона, мы назначим время звонка и поможем принять решение