Новый дом с ремонтом в спокойных тонах.
Хутор Ленина-это развитая локация в рамках города, высокая транспортная доступность и инфраструктура со всеми атрибутами, присущими городским кварталам. Сетевые магазины, новая школа, новый детский сад и поликлиника, банк, большой новый детский парк для прогулок, рынок и вся та инфраструктура, которая соответствует развитому жилому сектору. Первый населенный пункт от города, рядом находится OzMoll, Окей, Метро.
Экологически чистый район без промышленных объектов, близость к водохранилищу, где можно рыбачить, гулять и загорать-всё это делает район одним из самых востребованных вариантов при выборе дома для постоянного проживания.
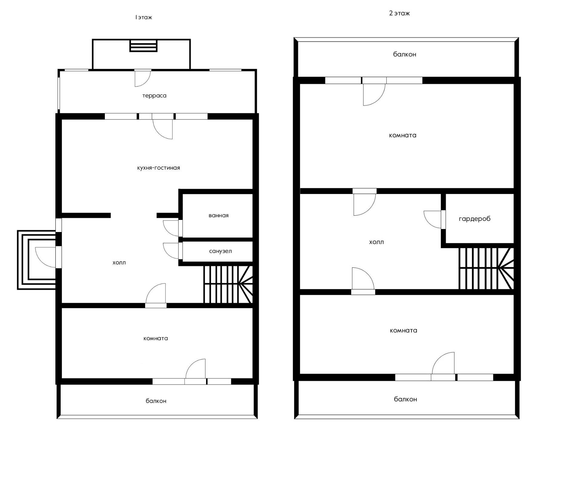
Дом новый, полностью из кирпича, очень теплый и уютный. Три жилых комнаты, просторная кухня-гостиная, гардеробная, кладовая. Материалы, используемые при ремонте-очень высокого качества всё делали для себя. Просторный участок, при въезде выложен плиткой.
Звоните сейчас, организую показ и отвечу на оставшиеся вопросы.
Арт.1013103862
Оставьте свой номер телефона, мы назначим время звонка и поможем принять решение