В продаже шикарное домовладение в станице Новотитаровская.
Дом двухэтажный с цокольным этажом и мансардой общей площадью 440 кв.м., расположенный на участке 16 соток. Фасад 20 метров. Забор по всему периметру кирпичный. Перед домом большая зона отчуждения, оборудованная под гостевую парковку.
При постройке дома и ремонте использованы исключительно качественные строительные материалы.
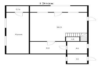
На первом этаже 3 спальные комнаты, большой зал, просторная кухня, санузел, гардеробная, терраса.
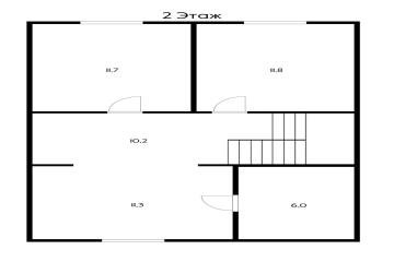
На втором этаже 3 спальные комнаты, гардеробная, санузел, небольшой зал.
Также имеется мансарда с ремонтом, свободная планировка. Есть бассейн и дровяная баня
Цоколь с ремонтом, сухой. Помещения можно использовать для различных целей, а также в цоколе есть бойлерная, санузел и хамам.
Везде установлены сплит системы.
Двор выстелен плиткой, имеется навес для машин и навес за домом в зоне отдыха, автоматические ворота. Придомовая территория ухожена, на участке много плодово-ягодных деревьев и кустов, оборудованная зона барбекю. Достаточно места для проведения комфортного отдыха, есть волейбольная площадка, гостевой домик, теплица.
Все коммуникации центральные: газ, вода, электричество, канализация.
Место очень тихое, шума улицы не слышно. Рядом школа, детские сады, общественный транспорт, магазины и прочие социально значимые объекты. Ж/д станция в пешей доступности.
Документы в порядке. Вся сумма в договоре. Продажа без процентов и комиссий.
Звоните!
Арт.1013226222
Оставьте свой номер телефона, мы назначим время звонка и поможем принять решение