В центре города продается дом с городскими коммуникациями и с современным светлым ремонтом!
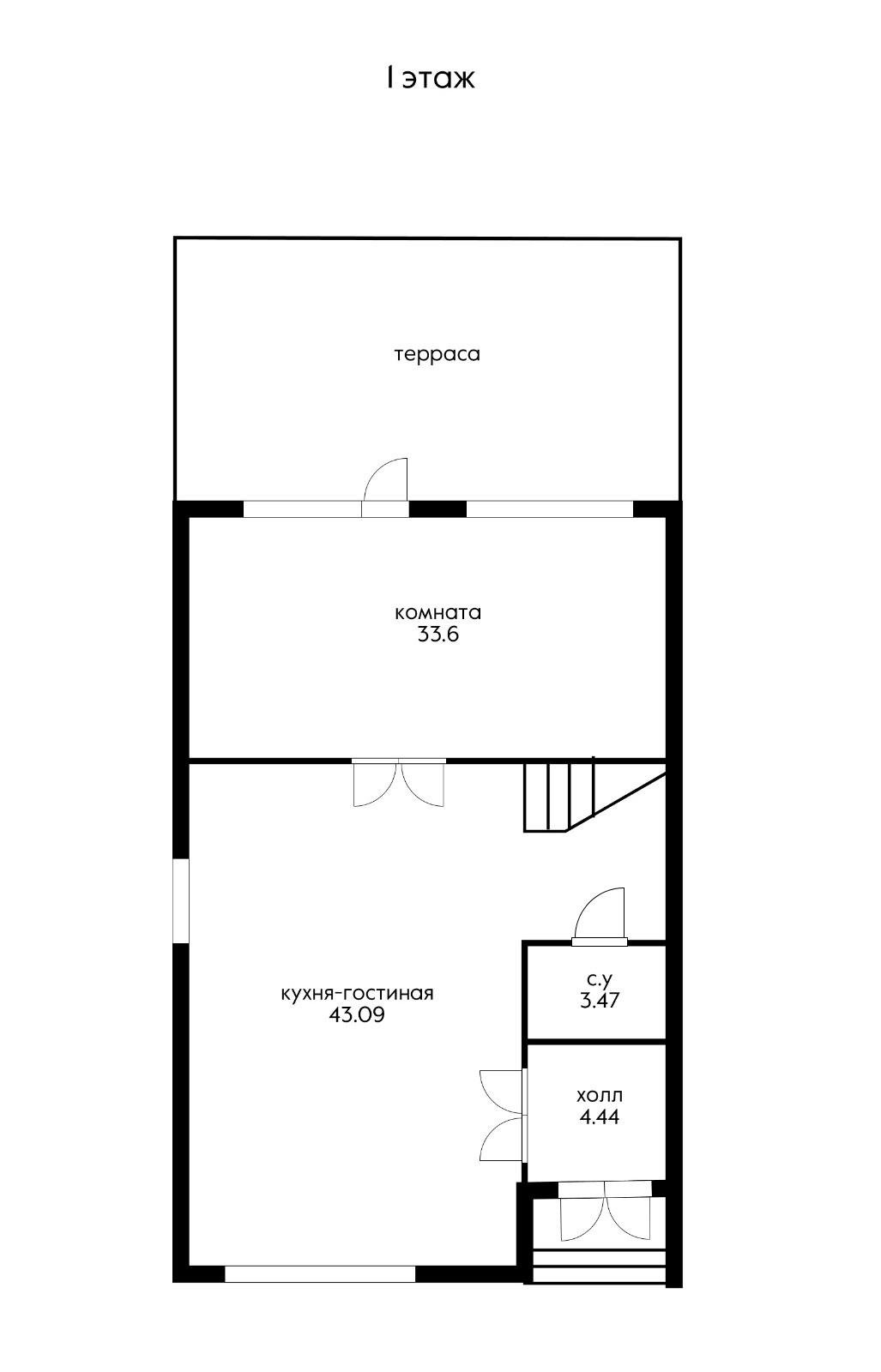
На данный момент дом используется под долгосрочную аренду серьезным арендатором, поэтому сделаны дополнительные некапитальные стены в кухне-гостиной для увеличения количества кабинетов. Сейчас их 7. При желании стены убираются и остается большая кухня- гостиная 43 м2.
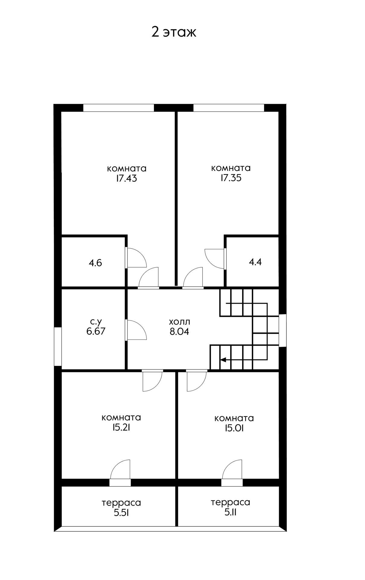
Дом можно использовать не только для аренды, но и для собственного проживания! На 2 этаже 4 больших комнаты, что позволяет жить там большой семье, а во дворе есть место и для мангала и для бассейна и для детской площадки! Школы, садики - все в шаговой доступности. Остановка транспорта - меньше минуты пешком!
Парковка - как во дворе, так и на придомовой территории. 6 машин встанут спокойно, а также рядом всегда есть места для дополнительных парковок!
Позвоните! Документы готовы к продаже!
Арт.1013328513

Оставьте свой номер телефона, мы назначим время звонка и поможем принять решение