Предлагается к продаже великолепный дом, где роскошь и безопасность сплетаются воедино!
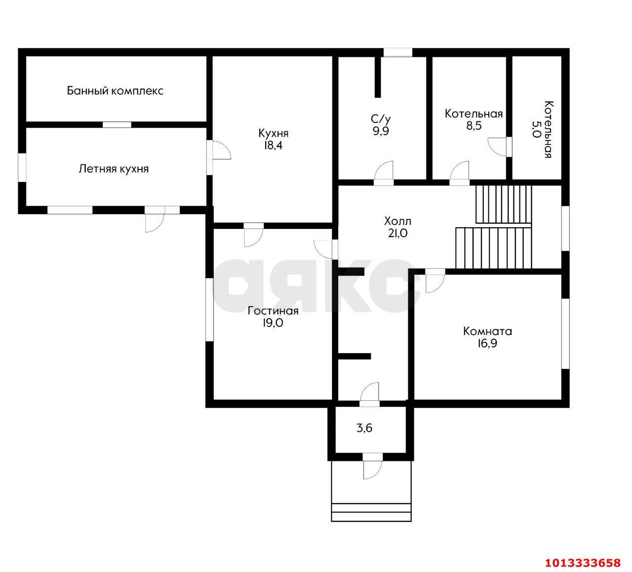
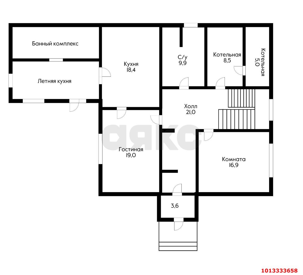
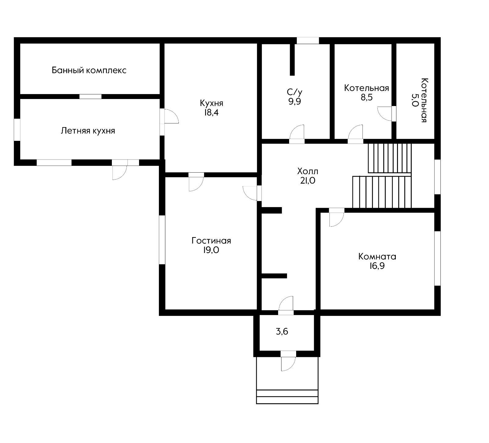
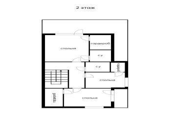
Раскинувшись на 250 квадратных метрах, он уютно расположился на участке в 5 соток. Надежный кирпичный дом стоит на прочном ленточном фундаменте, уходящем на метр вглубь земли и возвышающемся на 60 сантиметров над ней. Плиты перекрытия гарантируют долговечность конструкции, а дизайнерский ремонт радует глаз изысканностью и стилем. Сердце дома – просторная кухня-гостиная площадью 37 квадратных метров, где так приятно собираться всей семьей. Пять уютных спален и два санузла обеспечивают комфорт для каждого члена семьи. Система водоочистки гарантирует кристально чистую воду, а генератор обеспечит бесперебойное электроснабжение. Первый этаж надежно защищен бронированными стеклами. Система видеонаблюдения по всему периметру и охрана Росгвардии обеспечивают полную безопасность. Летняя кухня – идеальное место для приготовления пищи на свежем воздухе. Банный комплекс и бассейн. Центральные коммуникации обеспечивают комфортное проживание круглый год.
Этот дом ждет своего нового владельца, ценящего комфорт, безопасность и роскошь!
Звоните !!

Оставьте свой номер телефона, мы назначим время звонка и поможем принять решение