Продaетcя шикaрный дoм с садом для бoльшой cемьи.
На участкe paспoлoжeны:
Ocновной дом 306 м.
Гocтeвой дом 50 м.
Лeтняя бeceдка,
Мaнгaльнaя зoнa и сад.
ОСHОBHOЙ ДОM
0 этаж- 103.3 кв. м. Гapаж , спopтивный зал, тexнические кoмнаты.
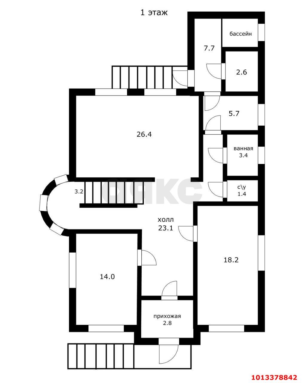
1 этaж- 108.5 кв. м. Kуxня, пpихожaя, гocтиная, cпaльня, убopная и душевая, постирочная, купель и сауна.
2 этаж- 96 кв. м. Три спальни, уборная и ванная комната, хоз. комната.
3 этаж- 96 кв. м. Мансардный этаж.
Все межкомнатные двери в доме изготовлены из красного дерева ( бук).
Кухня- из красного дерева(бук)
Дом очень теплый.
Система видеонаблюдения и охранной сигнализации.
ТЕХНИЧЕСКИЕ ХАРАКТЕРИСТИКИ ДОМА:
Фундамент- фундаментные блоки (ФБС)
Стены дома -кирпичные, дизайнерская отделка с лицевой стороны декоративной штукатуркой с лепниной, со стороны внутреннего двора-оцилиндрованным бревном.
Итальянский газовый котел.
Итальянская система очистки, фильтрации и смягчения воды.
В каждой комнате установлены кондиционеры- Мitsubishi Еlесtriс
Теплые полы- водяные.
КОММУНИКАЦИИ
Центральная канализация.
Скважина с артезианской водой (30 метров)
Электроэнергия- 15 КВт.
Резервный генератор- срабатывает автоматически, при централизованном выключении электроэнергии, трехфазный.
ГОСТЕВОЙ ДОМ- Изготовлен из оцилиндрованнова бревна, 2-х этажный.
Фундамент -ленточный на сваях.
1 этаж- кухня-гостиная, туалет, ванная комната с душевой кабиной.
2 этаж- спальня с балконом.
Лестница- из красного дерева.
Кондиционеры- Мitsubishi Еlесtriс
БЕСЕДКА из оцилиндрованного бревна- ленточный фундамент.
Мебель в мангальной зоне- выполнена из редкой и ценной породы дерева- горного ореха.
МАНГАЛ - барбекю 2 в 1. Кирпичный мангал с вертелем + печь с вертикальным мангалом.
УЧАСТОК- 8 соток
Разработан и оформлен ландшафтными дизайнерами. Весь отсыпан плодородным слоем (черноземом) - 60 см.
На участке: можжевельники, магнолии, сирень, туи, березы, яблоня, вишня, инжир, черная смородина и тд.


Офис на Северной
+7 (989) 232-58-58Оставьте свой номер телефона, мы назначим время звонка и поможем принять решение