В продаже новый двухэтажный кирпичный дом в станице Новотитаровская.
Год постройки - 2024 год.
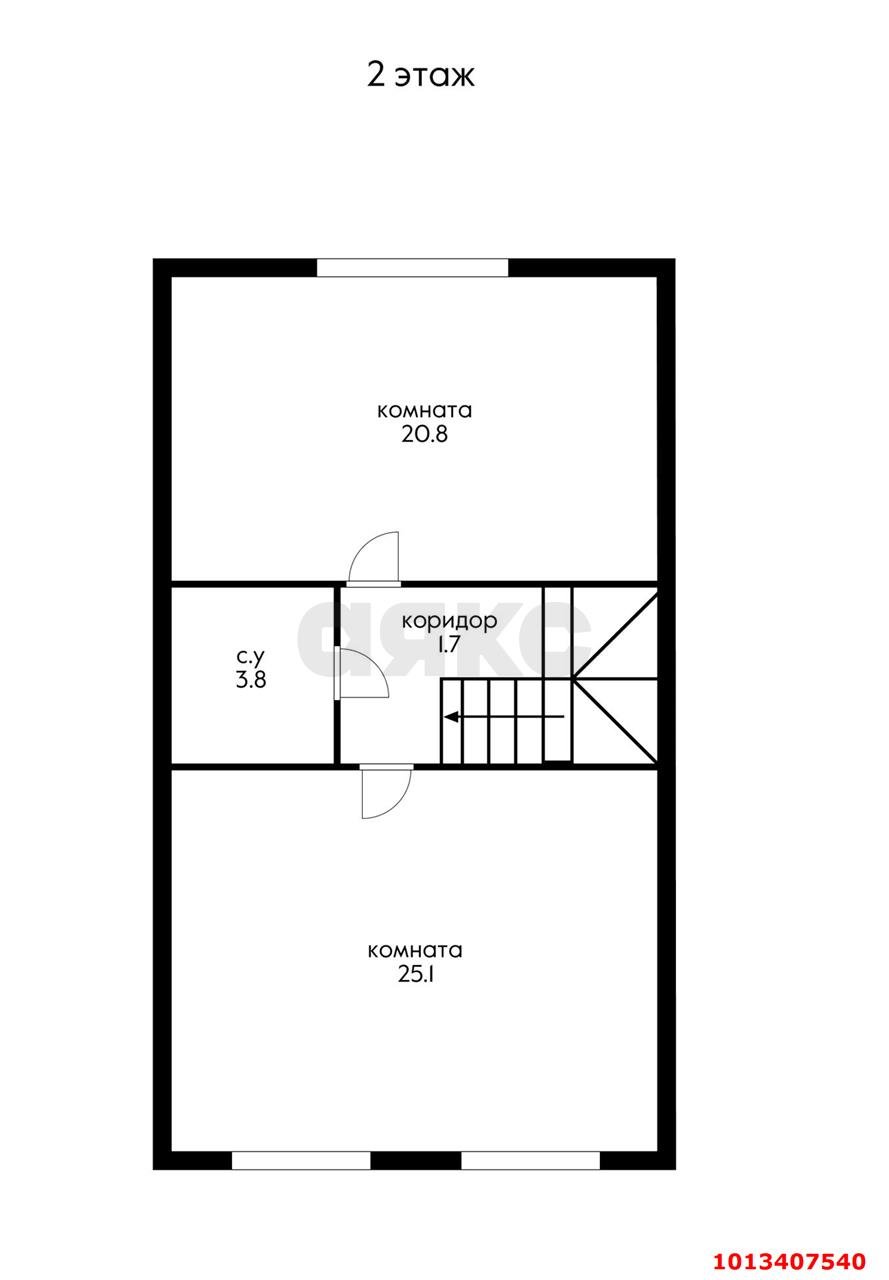
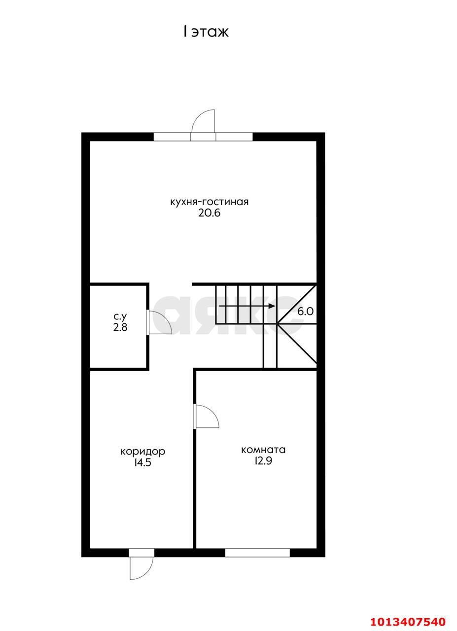
В доме 3 жилых комнаты, кухня-гостиная, прихожая, 2 санузла.
Выполнена качественная предчистовая отделка, стены оштукатурены и шпаклеваны, по полу песчано-цементная стяжка, полы на первом этаже в коридоре, санузле, кухне-гостиной с подогревом, везде в комнатах имеется разводка электричества и радиаторы отопления.
Коммуникации: электричество 3 фазы 15 кВт, скважина 22 метра, септик дренажный 6 кубов, центральный газ.
Двор забетонирован, место на 2 автомобиля, по периметру установлен забор из металлопрофиля, раздвижные ворота, выполнена бетонная отмостка вокруг дома.
В пешей доступности есть Магнит, Пятерочка, рынок, магазины, аптеки, кафе. Школа и детский садик через 2 квартала от дома. До реки Понура 100 метров, где можно отдыхать всей семьей, рыбачить и загорать.
В станице Новотитаровская развитая инфраструктура, есть парк, церковь, спорткомплекс, 8 детских садов, 3 школы, рынки, магазины, автошкола, нотариус, поликлиника, ж/д станция, с которой можно на электричке быстро доехать в город Краснодар.
Документы в порядке. Дом и земельный участок в собственности. Любая форма оплаты. Возможна господдержка при продаже (от юр. лица).
Звоните!
Арт.1013407540
Оставьте свой номер телефона, мы назначим время звонка и поможем принять решение