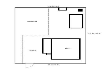
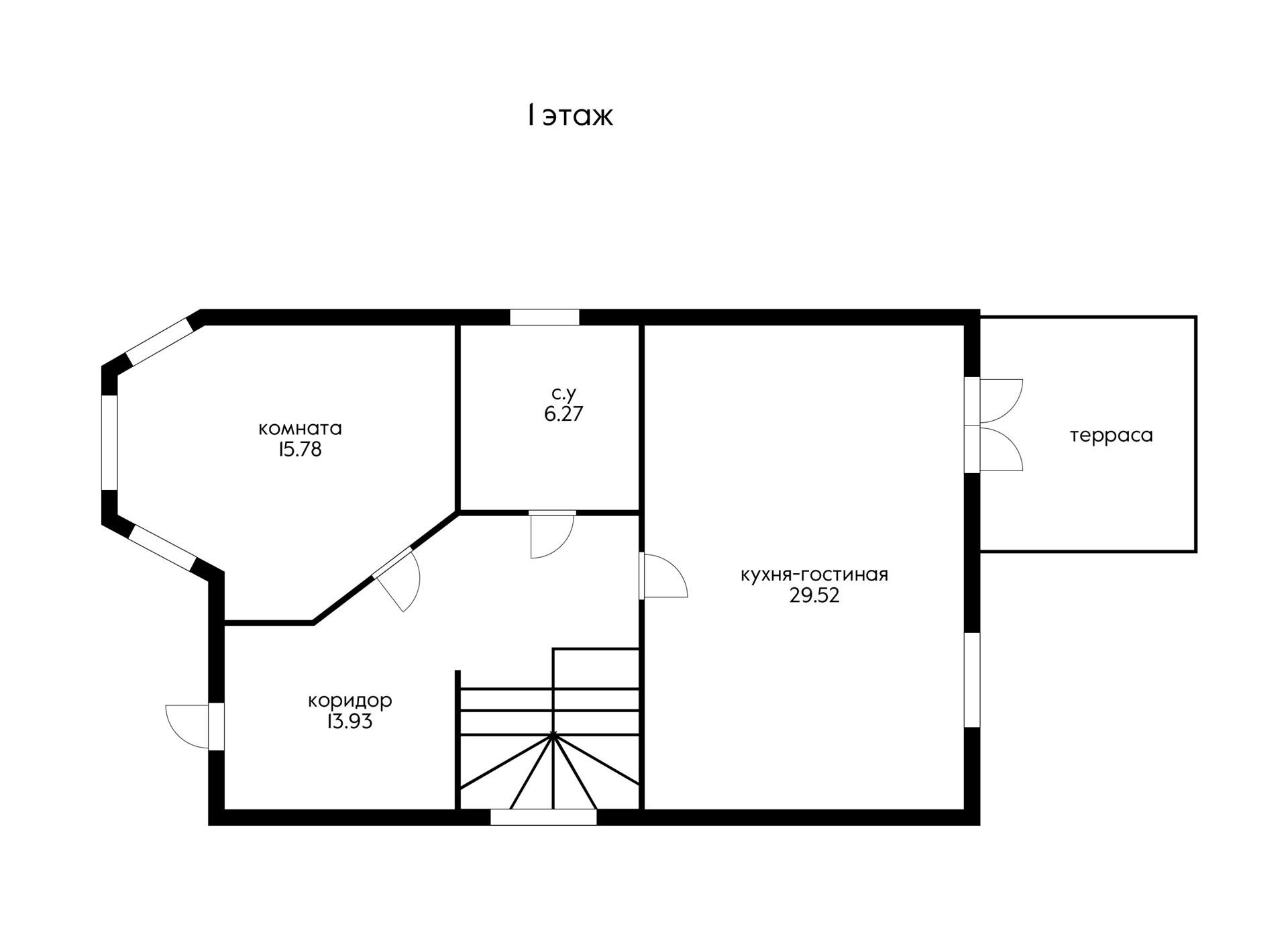
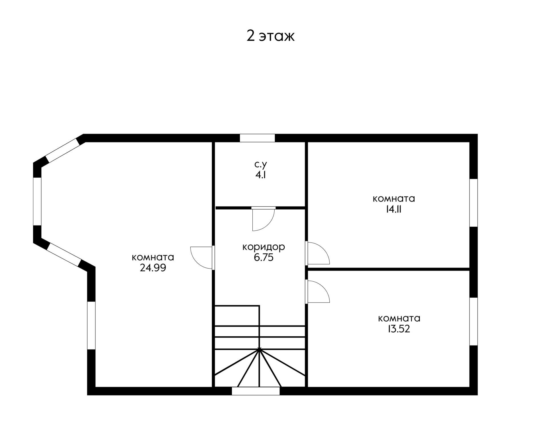
Дом 140 м² + 3.01 сот.
Краснодар, Прикубанский внутригородской округ, мкр. Тихая Поляна, ул. имени Атамана Н.И. Евдокимова, 2/14
12 800 000 ₽
91 429 ₽/м²
Продается новый дом в Немецкой Деревне.
Рядом с домом есть все: остановки общественного транспорта, школы в шаговой доступности, детские сады, множество магазинов, в 10 минутах езды ТРК "Красная площадь", спортивный комплекс Баскет холл и многое другое.
Дом отличного качества. Свайный фундамент. Шикарное архитектурное решение дома, сделан по спец. проекту. Отличное планировочное решение: 3 изолированные комнаты, просторная кухня-гостиная с выходом на террасу, санузел.
Звоните, расскажу подробнее!
Арт.1013408127

Офис на Дзержинского
+7 (989) 000-12-57Оставьте свой номер телефона, мы назначим время звонка и поможем принять решение