Дом 322 м² + 5.99 сот.
Краснодар, Центральный внутригородской округ, мкр. Табачная Фабрика, ул. Ипподромная, 9
42 000 000 ₽
130 313 ₽/м²
Продаётся кирпичный дом с ландшафтным дизайном в районе Садового моста.
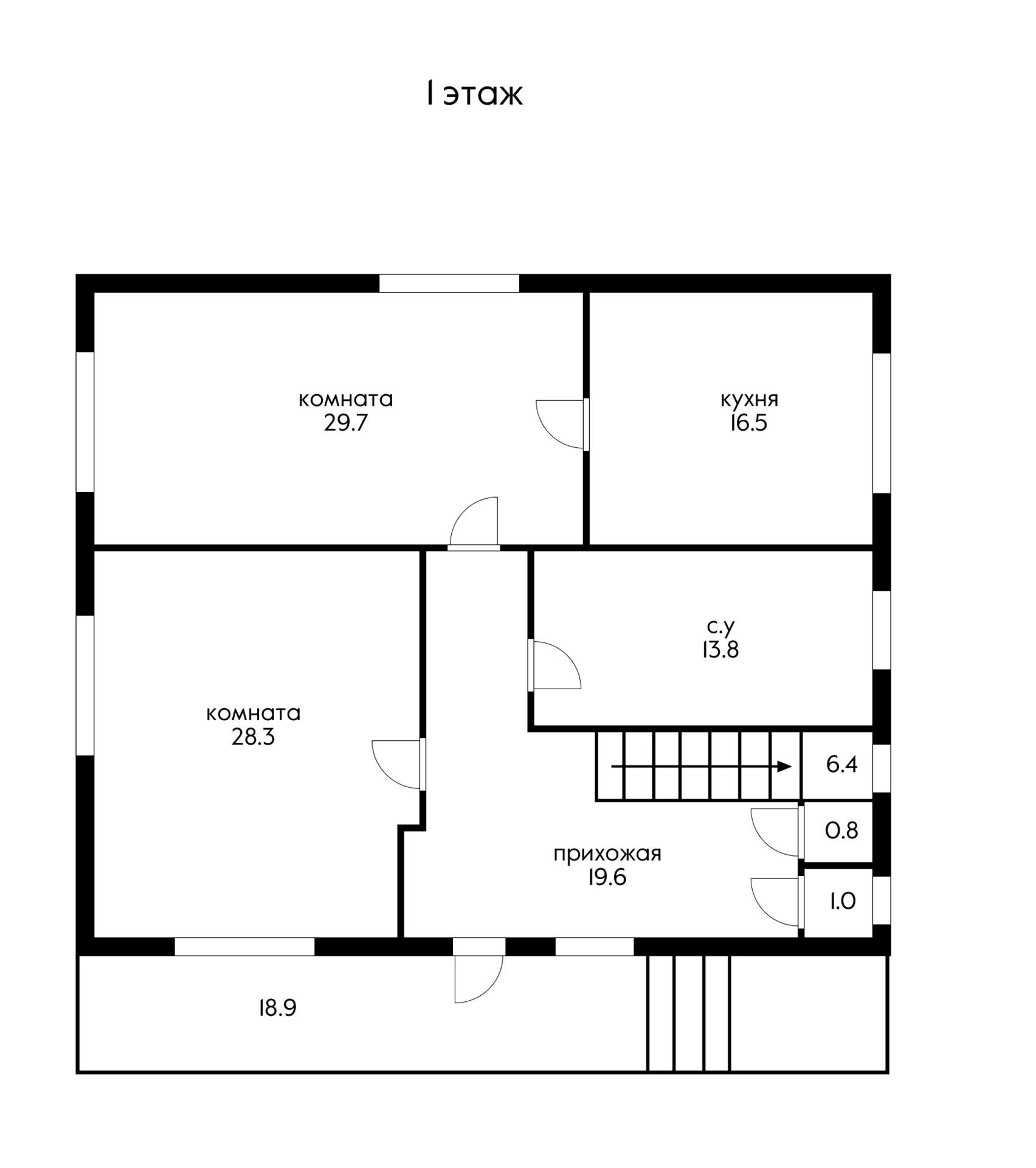
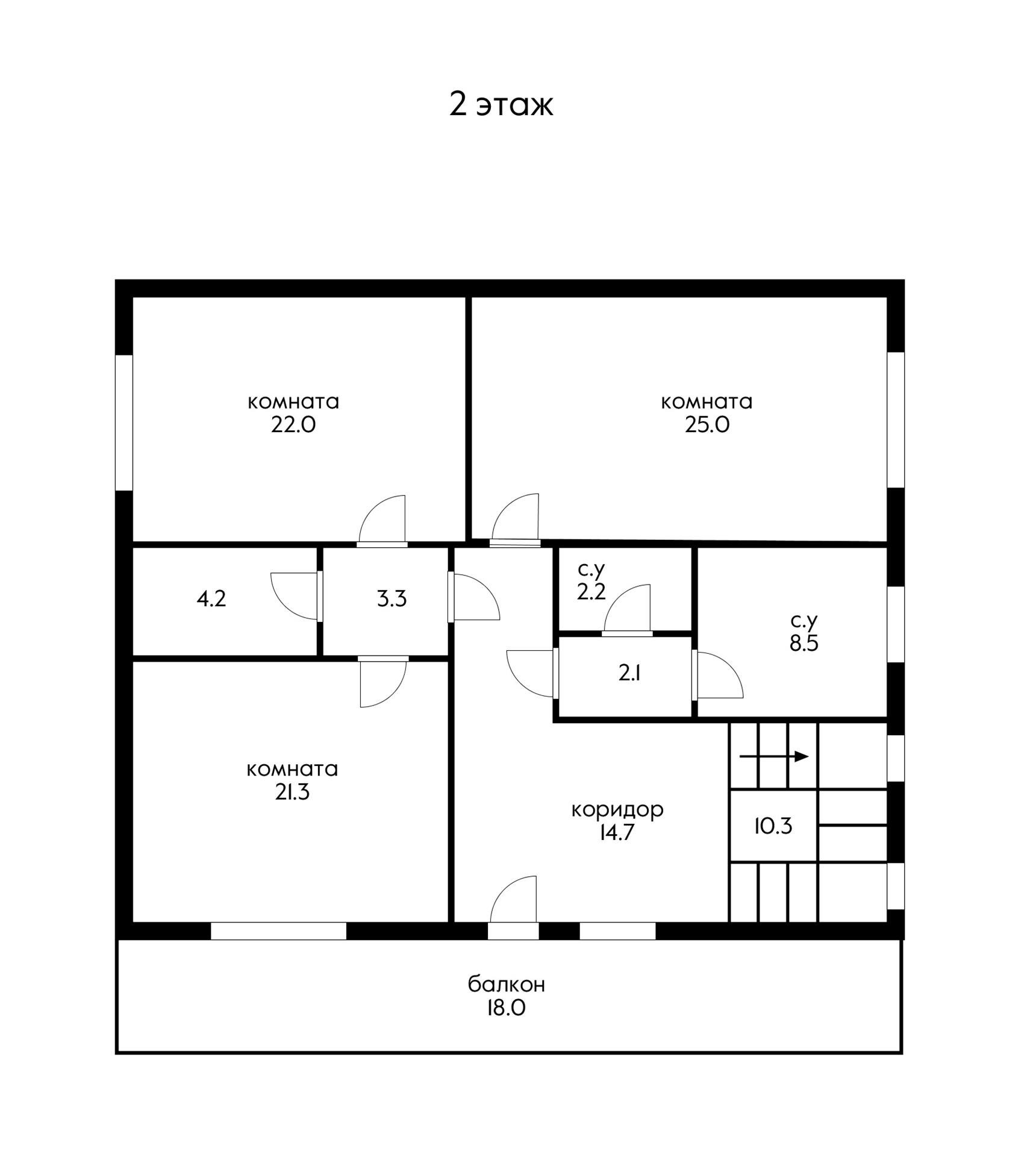
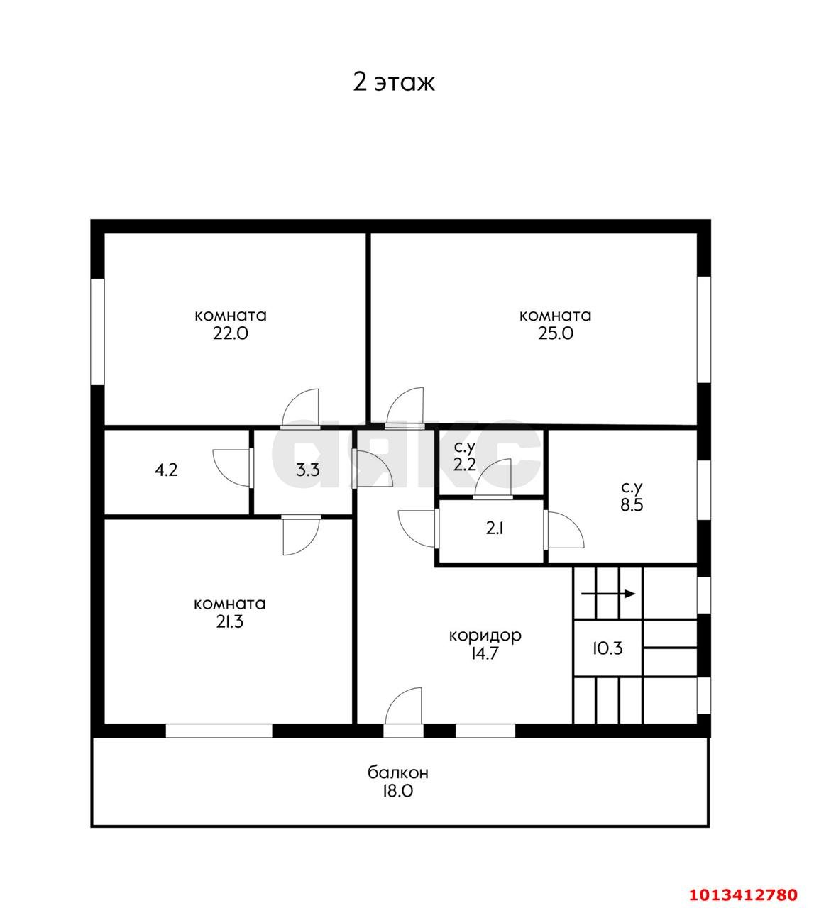
Дом расположен в экологически чистом районе, рядом с парками и зонами отдыха. В доме четыре спальни, две ванные комнаты, гостиная, кухня и терраса на втором этаже. Внутри есть всё необходимое для комфортного проживания: качественная отделка, мебель и бытовая техника.
Ландшафтный дизайн включает в себя зелёные насаждения, цветочные клумбы и зоны отдыха. Во дворе есть место для парковки автомобилей.
Особенности: ухоженная территория, удобное расположение, инфраструктура поблизости.
Не упустите возможность стать обладателем этого прекрасного дома с гаражом и ландшафтным дизайном!
Арт.1013412780
Оставьте свой номер телефона, мы назначим время звонка и поможем принять решение