Продам жилой дом с коммерцией.
Дом 200 квадратов + Коммерция 150 квадратов. В доме сделан евроремонт. Во дворе есть подсобные помещения, мастерские, большой навес вокруг дома, и свободный участок земли на заднем дворе.
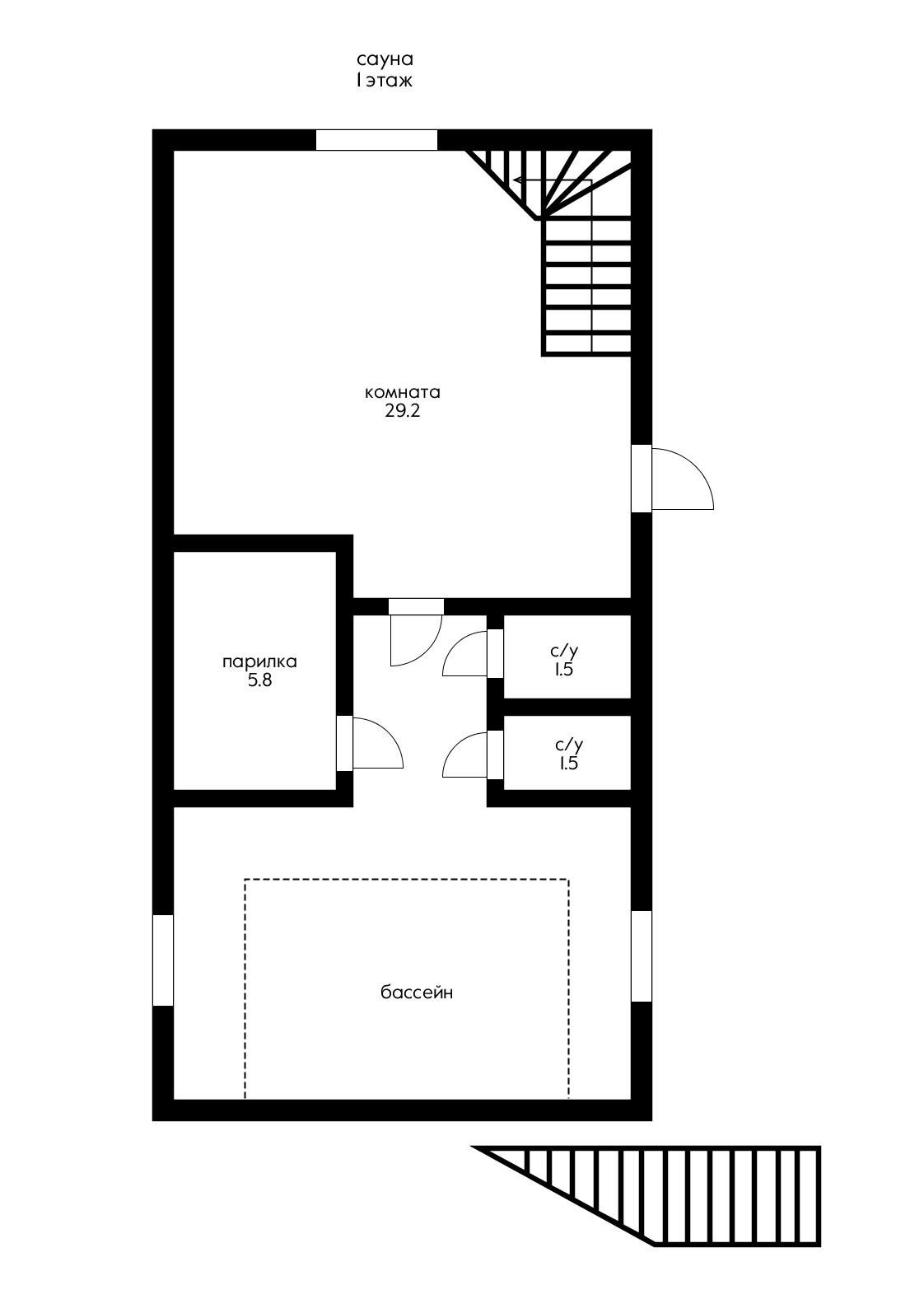
Коммерция - функционирующая сауна + 2 студии для сдачи в аренду. Суммарный финансовый поток зависит от времени года и активной рекламы. В данный момент сауной пользуются постоянные клиенты + местные жители, доход в месяц доходит до 50 000 рублей.
Поселок Дивный - один из лучших коттеджных поселков Краснодара был спроектирован и размежеван под двухэтажные коттеджи, со своим детским садом, храмом и школой. В поселке есть газификация, центральная вода. Общественный транспорт ходит регулярно в центр Краснодара каждые 10 минут. Идеальная экологическая обстановка - нет никаких вредных производств, предприятий или каких-то техногенных объектов. Чистый воздух, идеальная тишина и пение птиц.
Отличный вариант для тех, кто хочет жить в чистом, спокойном месте и иметь регулярный пассивный доход, без лишних затрат.
Жду вас на просмотр!
Арт.1013603939
Оставьте свой номер телефона, мы назначим время звонка и поможем принять решение