Дом 136 м² + 3.64 сот.
Краснодар, Прикубанский внутригородской округ, мкр. Отделение № 1 ОПХ Колос, ул. Рябиновая, 43/2
15 000 000 ₽
109 649 ₽/м²
Продам шикарный двухэтажный дом.
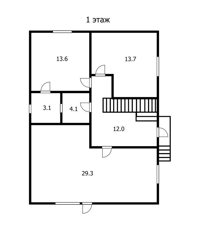
Площадь 136,8 м2. С идеально ровной предчистовой отделкой, выполненной французской шпатлевкой. Сделана стяжка пола, теплые полы (кроме комнат), разводка отопления, водоснабжения, электричества., центральный газ. Отличная планировка.
Земля 4 сотки ИЖС. Установлены электрические откатные ворота. Навес для автомобиля.
Рядом детский сад и школа, супермаркет Магнит, Лента, остановки общественного транспорта в шаговой доступности! В центр города можно добраться за 25 минут.
Организую показ в удобное для Вас время! Звоните!
Арт.1013619456
Оставьте свой номер телефона, мы назначим время звонка и поможем принять решение