Отличный качественный 2х этажный кирпичный дом в закрытом коттеджном поселке "Близкий", р-н ул. Красных Партизан/ Западный обход, на участке 4 сотки ИЖС, со всеми подключенными коммуникациями.
Дом строили для себя, есть Дизайн проект, к его окончательной реализации все подготовлено: идеальная предчистовая отделка: выравнены стены под маяк, теплые полы и наливной пол, разводка сантехники и электрики (с разноуровневым светом), заложены трассы под сплит системы, санузел и котельная в кафеле, крыша утеплена и натяжные потолки.
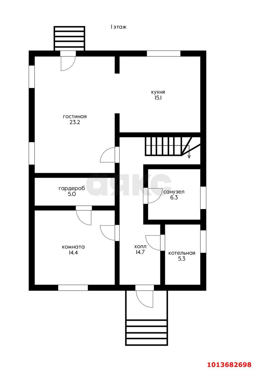
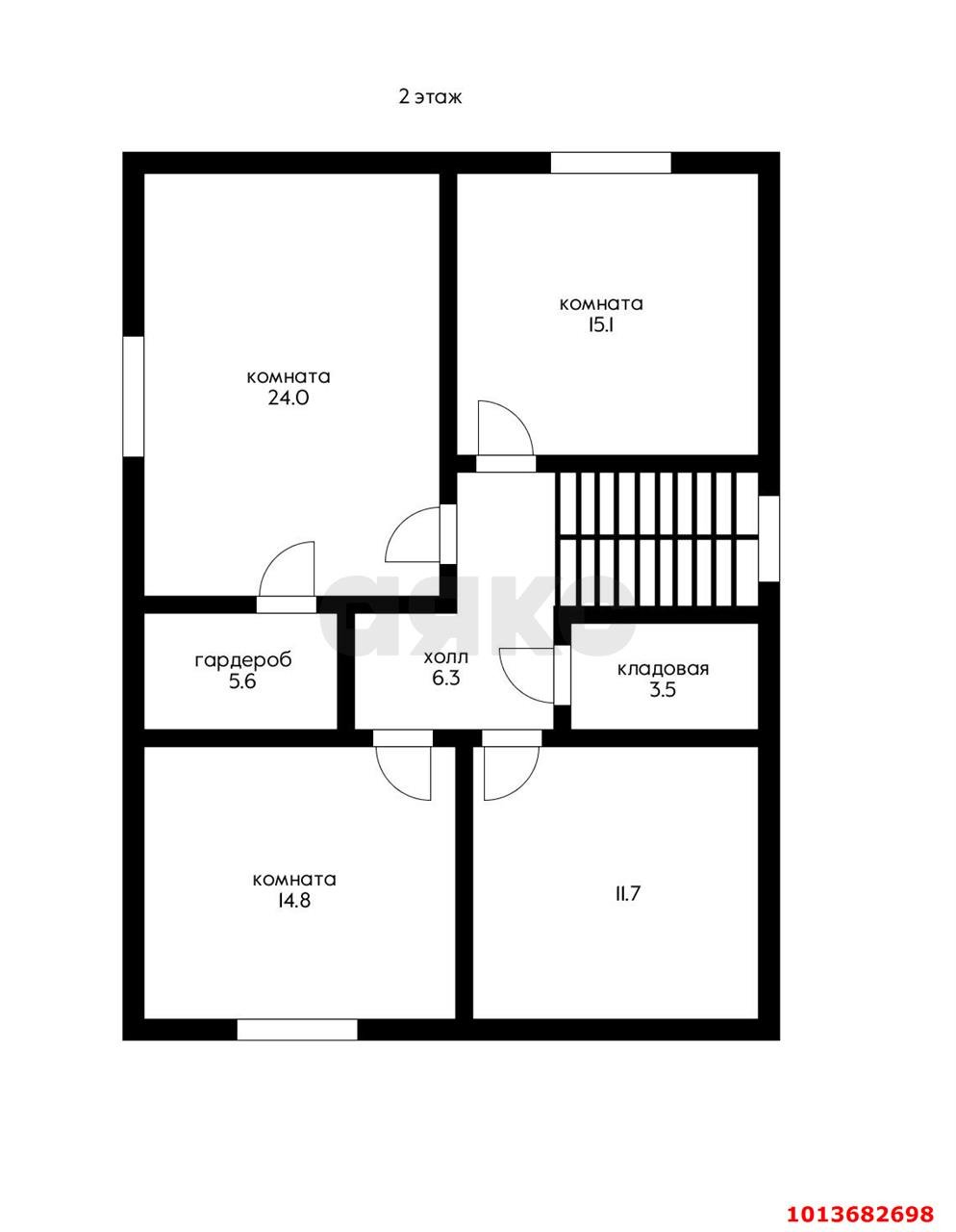
Грамотная планировка:
на первом этаже: кухня и гостиная с камином и выходом на задний двор, спальня с гардеробной комнатой, санузел и котельная.
на втором этаже: две детских, спальня с гардеробом, просторный санузел, кладовая.
в доме комфортно разместится Семья в любом составе.
Участок 4 сотки ИЖС грамотно спланирован, парковка во дворе до трех машин, просторный задний двор, оборудована зона под барбекю, насажены садовые деревья. Двор, заезд и придомовая территория выложены плиткой, Заасфальтированы подъездные пути, автоматические откатные ворота. Подключены все коммуникации: сетевой газ, электричество-10клв., скважина (32м-второй водоносный слой), септик (3 кольца переливной).
Новый классный поселок с закрытой территорией, охраной и видеонаблюдением, элитными соседями, асфальтированными дорогами, в 15 мин. от центра города и быстрым выездом на море. Возле гипермаркет Лента, автозаправка, магазины различного формата в том числе Магнит, новая муниципальная Школа и детский сад, остановка общественного транспорта, рядом Краевая Клиническая больница и Ботанический сад.
Продажа срочная! Без налогов! без комиссии! Звоните!
Арт.1013682698
Оставьте свой номер телефона, мы назначим время звонка и поможем принять решение