Продаю одноэтажный дом премиум класса в стиле хай тек.
Закрытый коттеджный поселок Близкий, с центральными коммуникациями и охраняемой территорией, в окружении статусных соседей, в непосредственной близости к центру города и выезду к морю.
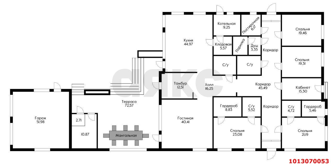
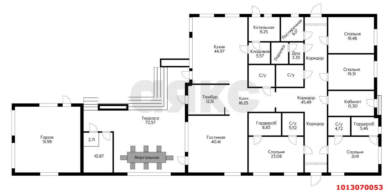
Площадь самого дома 377 м2 (общая площадь дома , террасы, мангальной зоны и гаража 512 м2). Площадь земельного участка 12,6 соток, торцевой, имеет 3 отдельных выхода на каждую сторону.
Высота потолка в доме 4 метра (под центральное кондиционирование).
В каждом помещении большие окна, 2 мастер спальни с гардеробными и с/у, еще 2 без гардеробных и есть кабинет с отдельным выходом из дому.
Все коммуникации проведены ( газ, 15 Квт электричество, канализация, водопровод + скважина 60 м глубиной. ) и установлена необходимая инженерная техника.
Осталось выполнить ремонт по своему вкусу и можно жить в этом великолепном доме.
Готовы все необходимые документы для сделки
Звоните, отвечу на все вопросы и организую презентацию на объекте.
Арт.1013070053
Оставьте свой номер телефона, мы назначим время звонка и поможем принять решение