Дом 316 м² + 8 сот.
Яблоновский, ул. Королёва, 10
24 000 000 ₽
75 781 ₽/м²
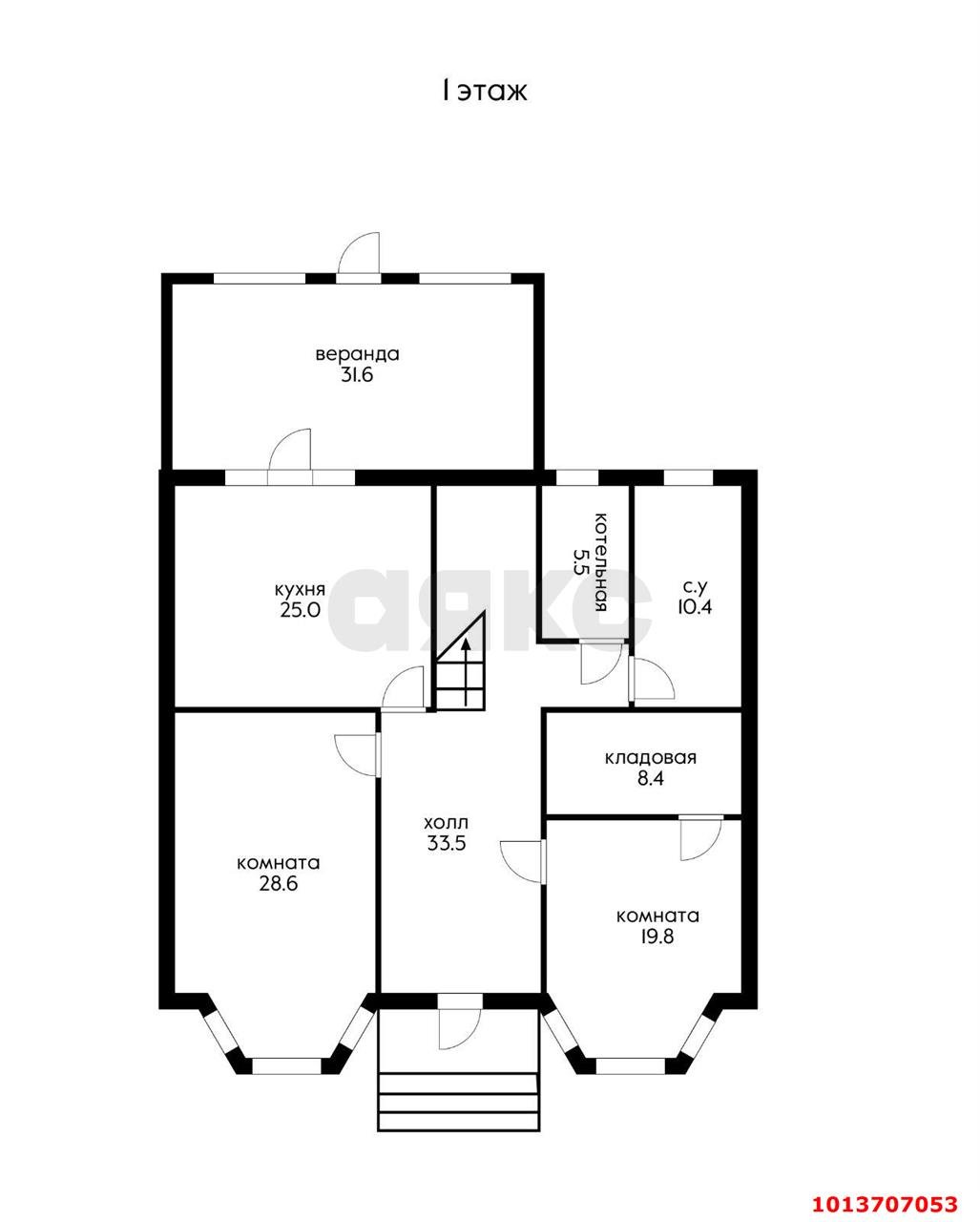
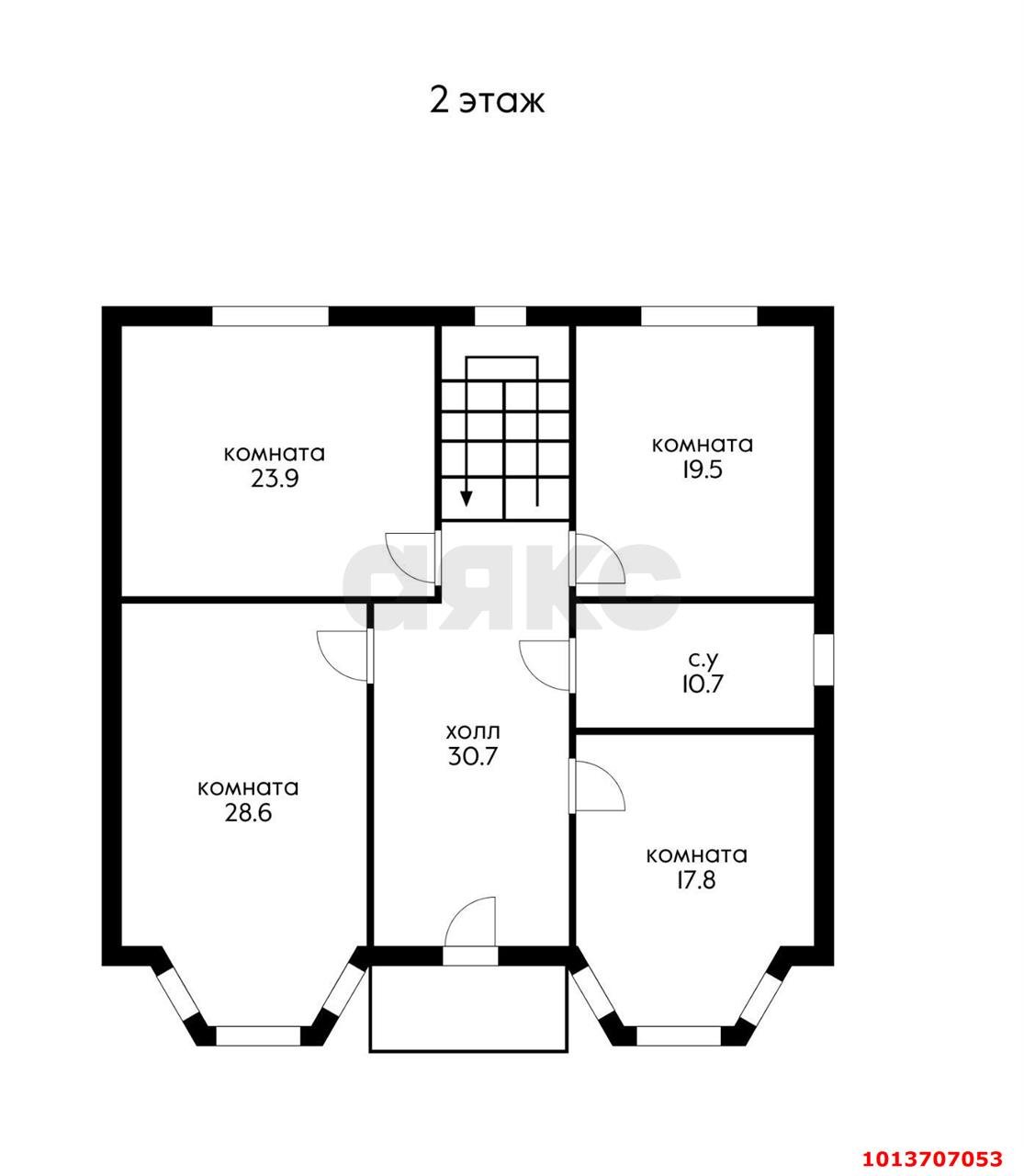
В продаже новый дом в центре п. Яблоновского общей площадью 316 м² с террасой 40м на участке 8 соток. Подключены все центральные коммуникации: газ, электричество, вода и септическая канализация.
Дом расположен в удобном месте, рядом есть все необходимое для комфортной жизни. Магазины и остановки общественного транспорта находятся в 3-5 минутах пешком, а школы и детские сады — всего в 800 метрах (7-15 минут прогулки). Удобный и быстрый выезд в центр Краснодара (10-20 минут) или в сторону моря и гор.
Это отличный дом в уютном районе! Звоните для получения бесплатной индивидуальной консультации и записи на просмотр!
Арт.1013707053
Оставьте свой номер телефона, мы назначим время звонка и поможем принять решение