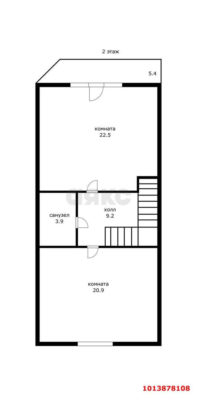
Продается дом 125 кв.м. на участке 3 сотки в СНТ Хутор Ленина.
Подходит семейная ипотека, господдержка.
Качественна постройка, удобная планировка. Предчистовая отделка, стяжка пола, теплый пол в местах общего пользования, разводка электрики и сантехники, подбитый потолок OSB, свет и вода центральные, канализация-септик 6 кубов, установлен газгольдер и двухконтурный газовый котел. Бетонированное парковочное место, отмостка вокруг дома. Забор по периметру, фасадный забор с роллетными электроворотами и алюминиевой калиткой DooRHan
Есть возможность купить дом в предчистовой отделке, либо с ремонтом от застройщика.
Отличное расположение -экологически чистый район. Рядом дорога, остановка общественного транспорта, водоемы, продуктовые магазины, школы и детские сады, банки.
Городская прописка, а тарифы на коммунальные услуги сельские. Документы на дом находятся на стадии оформления. Звоните и организуем показ.
Продается соседний дом.
Звоните!
Арт.1013878108

Офис на Рашпилевской, 9 этаж, к. 904
+7 (989) 290-26-26Оставьте свой номер телефона, мы назначим время звонка и поможем принять решение