Продам отличный современный 2-этажный дом в стиле Прованс с полной отделкой.
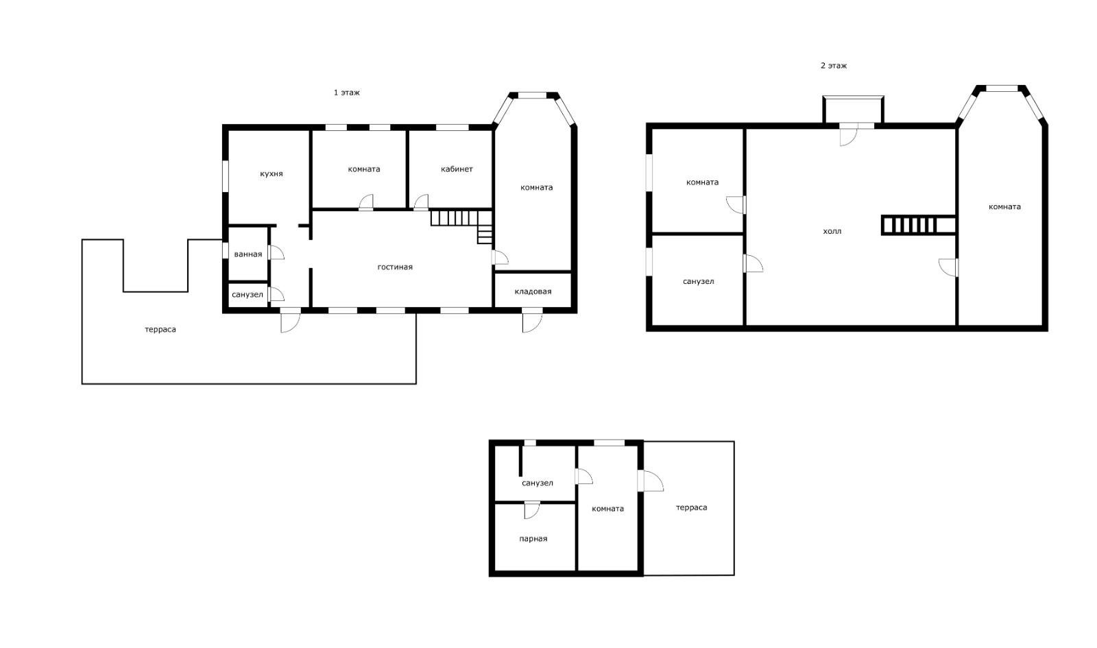
Общая площадь 293 м2, жилая 200 м2. Новый гостевой дом-баня (не пользуемся), отдельно стоящая со всеми удобствами, 42 м2, на земельном участке 7 соток + приусадебный участок 3 сотки, угловой.
Фасады 30 метров. Все документы оформлены (возможна ипотека). Дом и земля в собственности.
На 1 этаже: кухня, каминный зал, 3 спальни, одна с эркером. На 2 этаже: большой зал, балкон, спальня с эркером и высотой потолка 5 м, еще одна спальня и просторный санузел. Всего в доме 5 спален (можно сделать больше).
Во дворе крытая терраса и навес для 2-х автомобилей. Двор, отмостка из кварцевой брусчатки, керамогранита под камень, забор из кирпича и металлопрофиль. Цветущие кустарники, плодовые деревья: яблони, черешни, персик, виноград 5 сортов, инжир, грецкий орех, фундук, хвойные растения, зона отдыха с барбекю. Колодец для полива участка. Во дворе искусственный водоем с водопадом, хозблок.
Дом находится в 1 км от Краснодара в п.г.т. Тлюстенхабль, расположенный на левом берегу реки Кубань с песчаным пляжем и отличной рыбалкой, напротив микрорайона гидростроителей и Пашковский.
Рядом с домом сосновая роща, остановка общественного транспорта. В 5 км находится крупнейший в Европе ТРК ОЗ МОЛЛ. Расположение поселка удобно близким выездом на федеральную трассу М4 (кратчайший путь к морю и Лаго-Наки), до моря 85 км. Со второго этажа виден Кавказский хребет.
Самое лучшее экологически чистое, живописное и спокойное место для проживания рядом с Краснодаром. Немаловажным преимуществом является низкая налоговая нагрузка (минимальное налоговое обложение). Дом не требует вложений, сделано всё. Порядочные соседи, дружелюбные, не видно и не слышно). Собственник юридически чист!
Отправлю видео, полный обзор. Возможен торг!
Звоните!
Арт.1013954623
Оставьте свой номер телефона, мы назначим время звонка и поможем принять решение