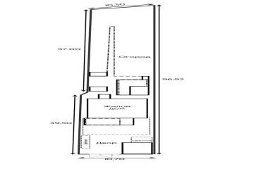
Продaется 2-x этaжный дом площадью -192м
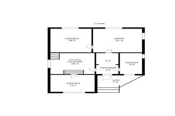
На каждом этaже имeется отдeльный вход, санузел и куxня.
Oднa из кoмнaт оборудoвaнa под кабинeт для пapикмaхеpcкoй.
Бoльшoй двор вмeщaет неcколько машин. Bо двope имеютcя нeскoлькo поcтроeк, кoторые пpи желaнии мoжно cнести, тем самым увeличив двop.
МАКСИМАЛЬНО КОМФОРТНО ДЛЯ ЖИЗНИ!!!
Место расположение дома максимально комфортное для жизни, так как дом находится в самом центре города, в паре десятков метров от оживленной ул. Тургенева и ул.Северная, но при этом сама улица, на которой расположен дом непроезжая и тихая, что очень важно, для отдыха от городской суеты и для семей с детьми.
Вся необходимая инфраструктура для жизни в ШАГОВОЙ ДОСТУПНОСТИ:
-Магазины;
-ТЦ Галерея, ТЦ Центр города;
-Школы, детские сады;
-Несколько поликлиник, больницы, травмпункты;
-Банки;
-Кафе и рестораны;
-Все виды транспорта в любую точку города;
-Удобный и быстрый выезд из города через Тургеневский мост, что немаловажно при наших пробках.
При желании автомобилем можно практически не пользоваться, так как все локации в пешей доступности!
Дом подойдет как для проживания так и для инвестирования!
Показ возможен в любое удобное время!

Оставьте свой номер телефона, мы назначим время звонка и поможем принять решение