Продаётся уникальный по красоте дом в тихом, уютном и экологически чистом месте!
Коттеджный посёлок закрытого типа "Ясенево" пользуется большой популярностью. Если вы предпочитаете спокойный ритм жизни вдали от городской суеты и в то же время близость к городу, то это место для Вас.
Идеальная локация отличается высоким уровнем безопасности - территория изолирована, попасть туда можно только через контрольно-пропускной пункт со шлагбаумом, периметры поселка оснащён системами видеонаблюдения. Все дома современные, соседи дружелюбные и респектабельные люди. Участок сухой, ровный, правильной формы. Заходя на территорию домовладения вы попадаете в атмосферу комфорта, стиля, спокойствия и безопасности.
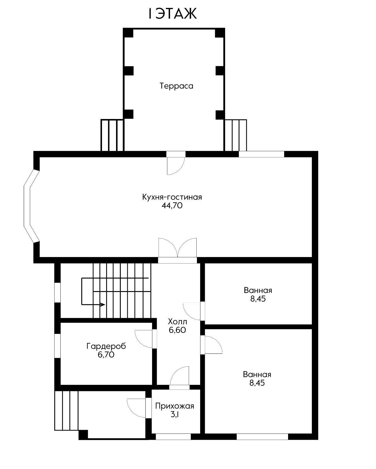
Дом площадью 232,4 км. м., построен по самым жестким требованиям к качеству строительных работ и материалов, начиная от фундамента, заканчивая крышей.
Дом двухэтажный, выполнен стильный дизайнерский ремонт, высокие потолки и дверные проёмы, витражное остекление, удобная и рациональная планировка. Вместительный холл, огромная кухня гостиная с выходом на террасу, отдельный вход в котельную через двор, большая гардеробная комната, 2 санузла, 6 изолированных спален. Все коммуникации выполнены с соблюдением технических требований. В этом доме идеально сочетается все - локация, планировка, ремонт.
В доме отопление "BAXI SLIM" автоматика "ZONT", тёплые полы, установлена система очистки воды, септики, а так же собственная скважина. Во дворе недостроенное хозпомещение площадью 120 кв. Можно использовать как гостевой дом, баню или что либо еще!!!
Звоните для показа!!!
Арт.1014001870

Офис на Дзержинского
+7 (989) 000-12-57Оставьте свой номер телефона, мы назначим время звонка и поможем принять решение