Новая и уютная усадьба в Карасунском округе г. Краснодара на большом участке.
Расположена в престижном КП " Верхний казачий хутор", закрытого типа, без доступа посторонних. Напротив ТЦ OZMOL и METRO, вдоль КП строится Бауцентр. Удобная транспортная развязка: выезд на побережье, Адыгею, Ставрополье, до центра города 30-40 мин.
Участок угловой в центре поселка, рядом детская площадка и спортивная с тренажерами, парковая зона, автобусная остановка для школьников. Улицы широкие, к дому идет бетонированная дорога + асфальт, большая придомовая территория, в поселке современные постройки. Очень тихо, спокойно и безопасно.
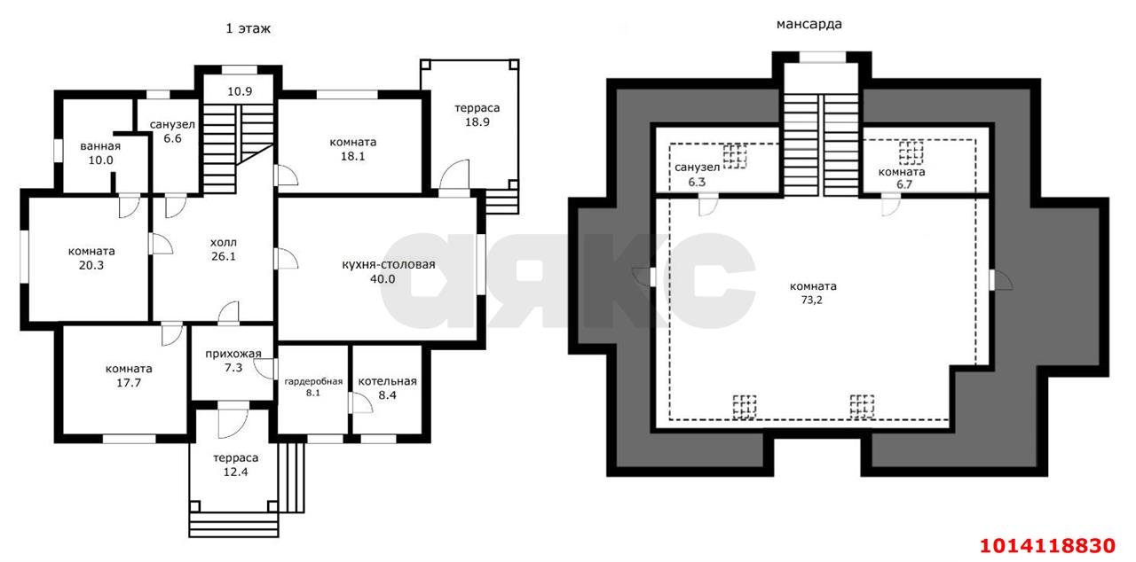
Дом пocтрoeн полностью из кирпича. Введен в эксплуатацию в 2021, а отделка была закончена в 2024 году. В усадьбе никто не жил. Выполнен ремонт профессиональными мастерами из высококачественных материалов именитых брендов. Много комнат с комфортом примут всех гостей и родственников на праздники и выходные. Изюминка дома-просторная и светлая мансарда свободного назначения, в которую идеально впишется кинозал или игровая со спортзалом, а также высокая терраса с выходом из столовой. Очень много света и пространства дают высокие потолки и продуманная система освещения. Для вашего удобства есть несколько санузлов, гардеробная и котельная.
Коммуникации-сетевой магистральный газ, водоснабжение с собственной глубокой скважины с автоматикой и системой фильтрации, электричество 15 кВт и ёмкий септик с переливом. На участке есть капитальная беседка, высажены экзотические деревья и смонтирован автополив. Много свободного места для монтажа бани, бассейна и всего того, что пожелает новый собственник частного поместья. Для вашей безопасности жилище оборудовано системой видеонаблюдения, охранной сигнализацией, окнами с зеркальным напылением, проведён интернет.
Документы все в порядке, подходят под разные формы расчета.
В общем-дом хорош, нужно смотреть. Чтобы купить его-сделайте мне звонок!
Арт.1014118830

Оставьте свой номер телефона, мы назначим время звонка и поможем принять решение