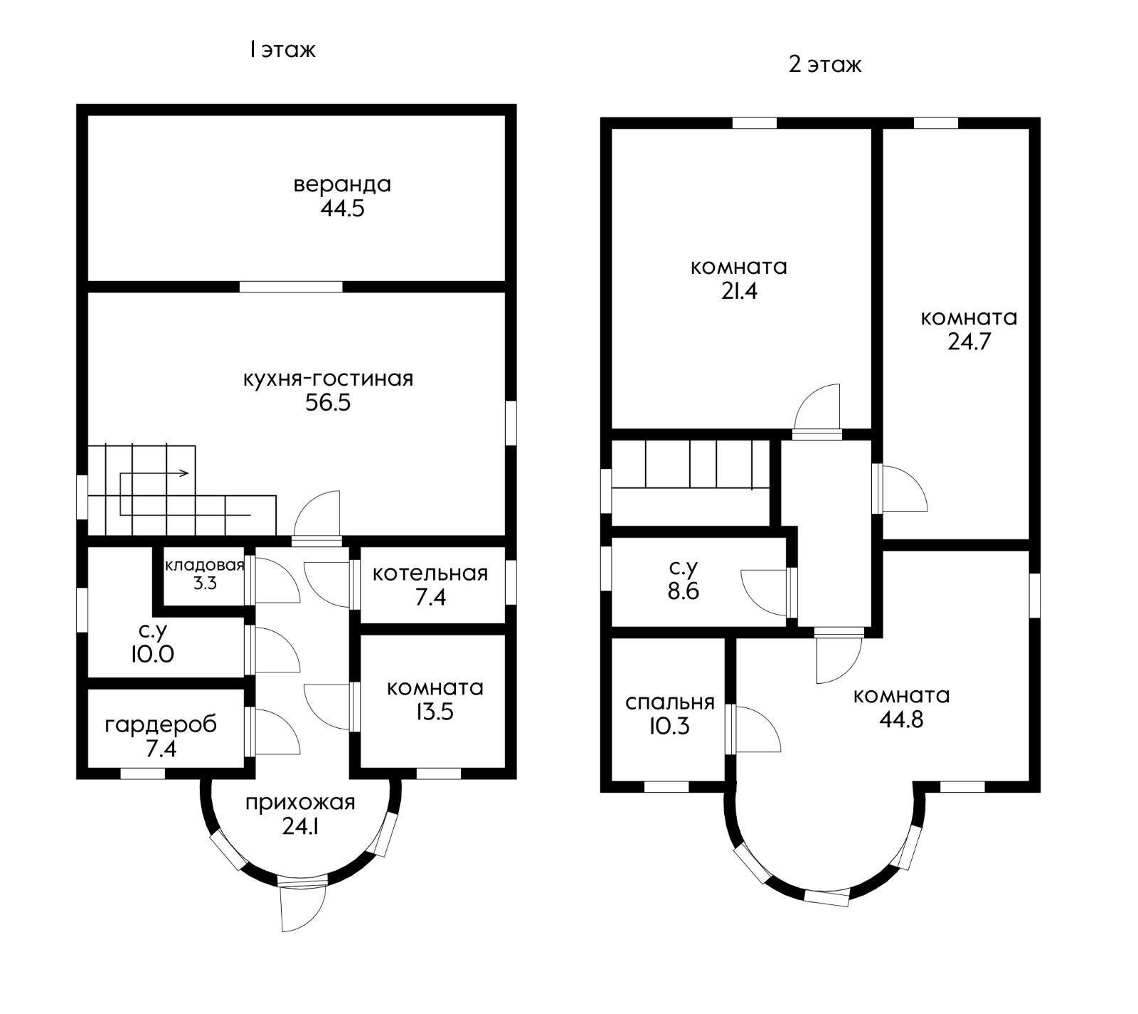
Продам двухэтажный дом площадью 290 метров на участке 9,4 сотки земли. Этот дом облицован дагестанским камнем, который придает ему уникальный и роскошный вид.
Расположен в мкр. Немецкой деревне (Зеленая долина-2). Давно сформированный микрорайон в котором есть всё необходимое для комфортной жизни; школа, детский сад, фитнес клуб, рестораны, прогулочные аллеи, озеро и другие коммерческие услуги. Подъезд к дому по асфальтированной широкой улице. Транспортная развязка в разные части города. Тихое спокойное место для умеренной и роскошной жизни.
Дом построен в качественно с соблюдением всех норм и требований. Облицован дагестанским камнем, двор готов к финишной прямой. В доме сделана стяжка, штукатурка, разводка электрики и тепла. Установлено газовое оборудование.
Звоните !
Арт.1013804177

Оставьте свой номер телефона, мы назначим время звонка и поможем принять решение