Дом 101 м² + 7 сот.
Динская, мкр. Северный, ул. Ивана Франко, 1
10 900 000 ₽
107 921 ₽/м²
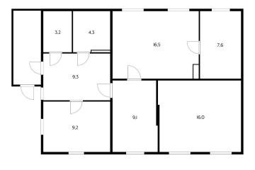
Дом в станице Динская, расположенный в живописном и спокойном месте. В доме три спальни и кухня-гостиная с выходом на задний двор. Строительство велось с соблюдением всех нормативов, а качество материалов и работы было тщательно проверено.
Дом полностью подготовлен к чистовой отделке, все коммуникации проведены внутрь. Вы можете воспользоваться всеми видами ипотеки, а также материнским капиталом и другими формами поддержки.
Если вас заинтересовало это предложение, не стесняйтесь звонить. Мы с радостью ответим на все ваши вопросы.
Арт.1014122427

Офис на Рашпилевской, 3 этаж
+7 (989) 000-12-59Оставьте свой номер телефона, мы назначим время звонка и поможем принять решение