Продам классный, практически новый дом, который находится на "Рублевке", в так называемом "поселке администрации".
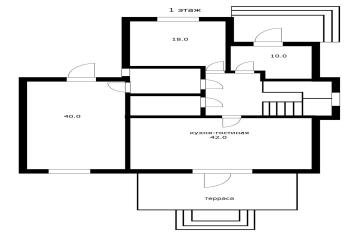
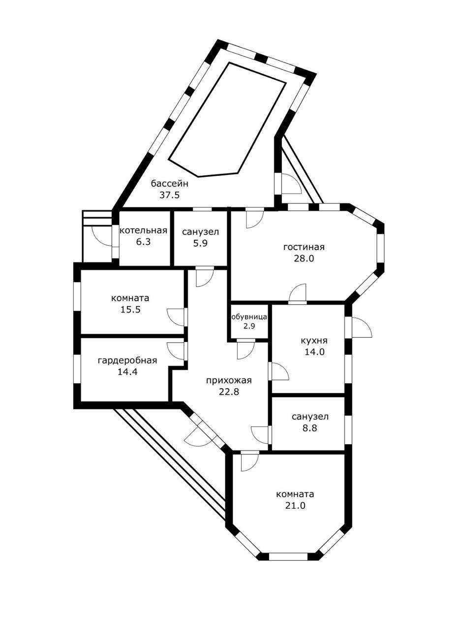
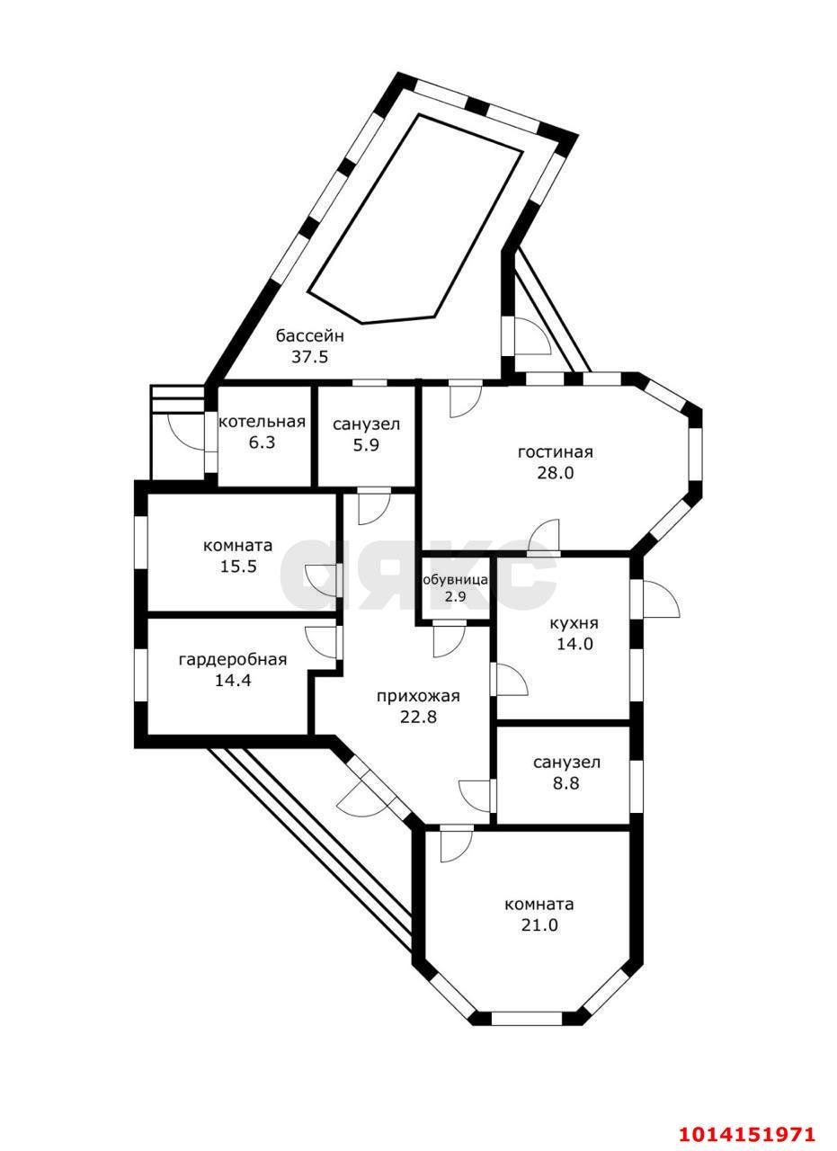
Дом 2019 года постройки. Площадь дома - 197 м2, земли 10 соток. В доме выполнен очень качественный ремонт. Тёплые полы по всему периметру дома. Высота потолков - 3 метра. В доме находится крытый бассейн, в котором вы можете купаться круглый год. Отдельного внимания заслуживает планировка - очень практичная и функциональная, буквально всё продумано до мелочей.
В дом заведены все центральные коммуникации - газ, водоснабжение, электричество 3 фазы 15 кВт. При продаже останется практически все, что вы видите на фото!
Участок 10 соток, во дворе выполнен ландшафтный дизайн, автополив во дворе и зоне отчуждения перед домом. Двор засажен хвойными туями и самшитом, так же имеется молодой фруктовый сад.
Коттеджный поселок, в котором расположен дом, полностью закрыт от посторонних, находится под охраной и видеонаблюдением, на территории введено ограничение скоростного режима. Подъездные пути к поселку полностью асфальтированы, имеется три спортивные площадки, одна большая детская площадка. Одним словом, в поселке идет своя тихая и размеренная жизнь. Ваши соседи - это состоятельные, статусные люди.
Объект юридически чистый - один собственник, в собственности более пяти лет. Дом шикарный, заслуживает вашего внимания! Звоните! Успейте быть первыми!
Арт.1014151971
Оставьте свой номер телефона, мы назначим время звонка и поможем принять решение