В продаже дом с новым ремонтом, мебелью и техникой в коттеджном поселке Малиновка.
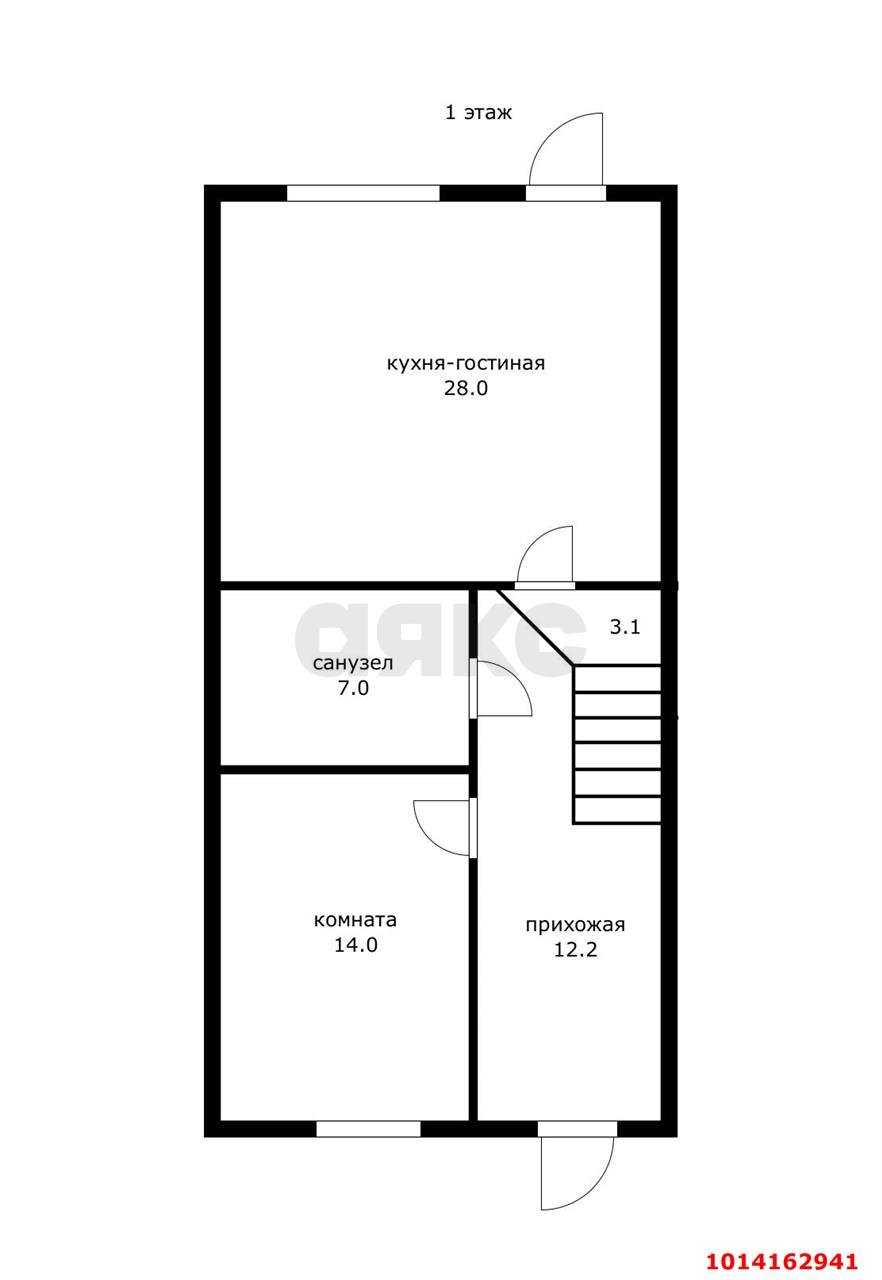
Двухэтажный дом включает в себя первый этаж: коридор с системой хранения верхних вещей и обуви, изолированная комната, санузел с душевой и большая кухня-гостиная с выходом на задний двор.
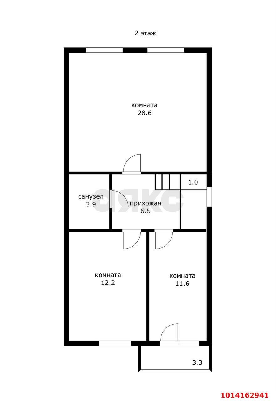
второй этаж: две стандартные спальни и большая комната, которую можно использовать по своему усмотрению, а так же санузел.
Задний двор вымощен брусчаткой, есть место под бассейн и лежаки, либо банный комплекс, зону барбекю. А так же готовая крытая терраса для приятных чаепитий под пение птиц.
Ремонт выполнен в светлых тонах, с использованием современных качественных материалов. Вся мебель и техника остаются новым обладателям этого уютного дома.
Документы готовы. Никто не прописан. Показ в любое время.
Добро пожаловать !
Арт.1014162941

Оставьте свой номер телефона, мы назначим время звонка и поможем принять решение