Продам красивый капитальный жилой дом площадью более 150м2 на большом участке 6 соток, фасад 30 метров. Район п. Российский - тихое спокойное зеленой место со всей необходимой инфраструктурой в шаговой доступности. Широкие отсыпанные подъездные дороги, бетонные пешеходные тротуары. Подходит любая льготная ипотека в том числе семейная.
Свежая постройка, высокие потолки около 3 метров, качественная предчистовая отделка, сделана разводка электрики и отопления, центральный газ идет по меже, своя скважина на воду и дренажный септик. Внутри есть место под парковку автомобилей, зону отдыха и барбекю, пространство для палисадника, огорода, плодовых деревьев и клумб с цветами.
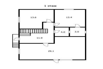
Использовались качественные материалы, мощный фундамент, бетонная отмостка с гидроизоляцией, широкие стены с утеплением и качественная кровля. Дом очень удобной планировки: большая кухня-гостиная около 40м2 с выходом на террасу и вторым светом, три отдельных спальни на первом этаже и свободное пространство наверху, котельная/гардеробная или большой совмещенный санузел.
Все документы готовы к продаже. Звоните, отвечу на интересующие Вас вопросы. Организую просмотр в удобное Вам время.
Арт.1014376132
Оставьте свой номер телефона, мы назначим время звонка и поможем принять решение