Дом 103 м² + 2.07 сот.
Краснодар, Прикубанский внутригородской округ, Калинино, мкр. Завод Радиоизмерительных Приборов, б-р Интернациональный, 106
13 700 000 ₽
132 495 ₽/м²
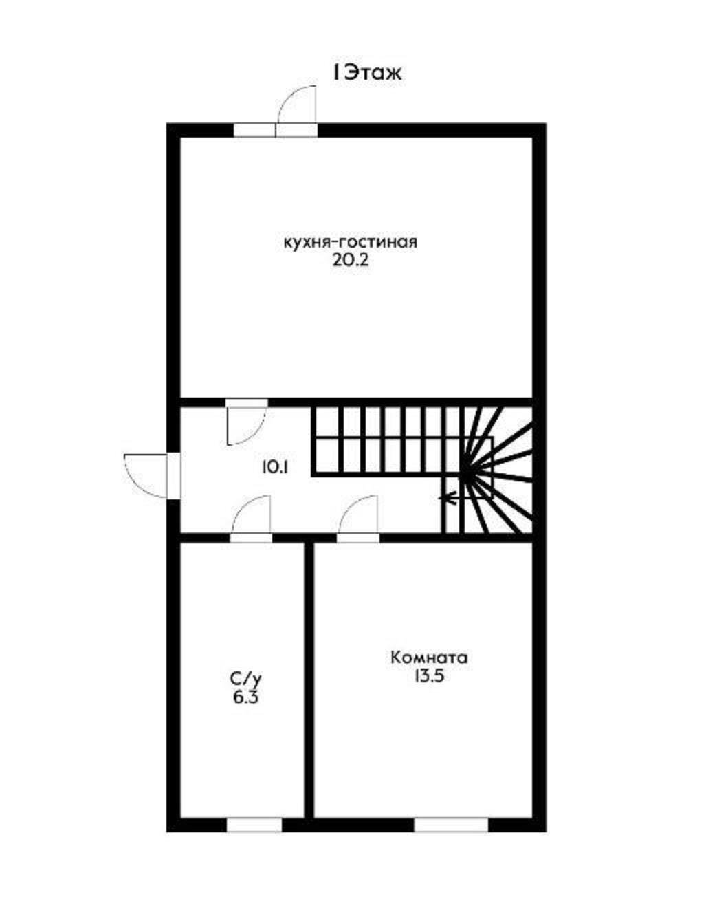
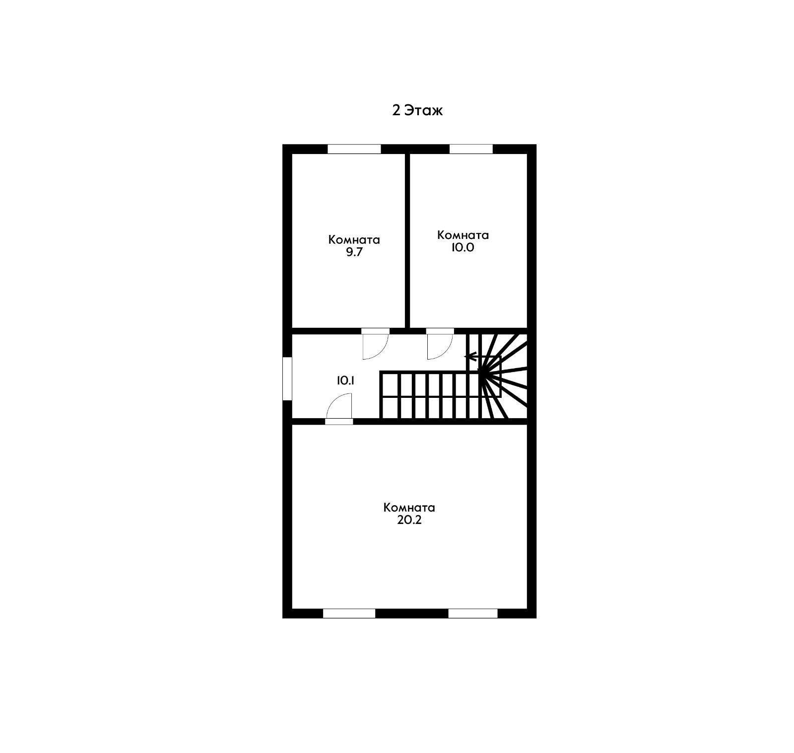
Продается готовый 2- этажный дом! Район РИП.
Качественная предчистовая отделка. Все коммуникации центральные.
В доме 4 комнаты, 2 санузла, большая светлая кухня, с выходом на задний двор, где есть место под зону барбекю. Осталось поставить межкомнатные двери и натяжные потолки.
Парковочное место для Вашего авто.
Район тихий и вместе с тем, обжитой. Рядом две новые школы, сеть магазинов, продуктовый рынок, детские сады, ТЦ "Лента", трамвай, маршрутки, выезд в любую точку города!
Один собственник, быстрая сделка.
Арт.1014408828

Оставьте свой номер телефона, мы назначим время звонка и поможем принять решение