Дом 161 м² в «Альпийской деревне» — простор и комфорт для семьи, где ценят качество жизни и уют.
Внимание: это не просто дом, а тщательно спроектированное пространство для активного семейного отдыха и спокойных вечеров. Ухоженный участок 3,9 сотки включает плодородные деревья и кустарники, виноград девяти сортов, а также розы и сирень — собственный сад с гастрономической и эстетической ценностью.
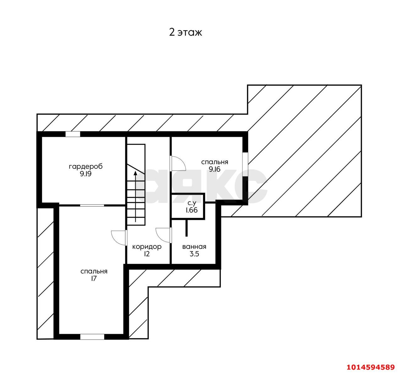
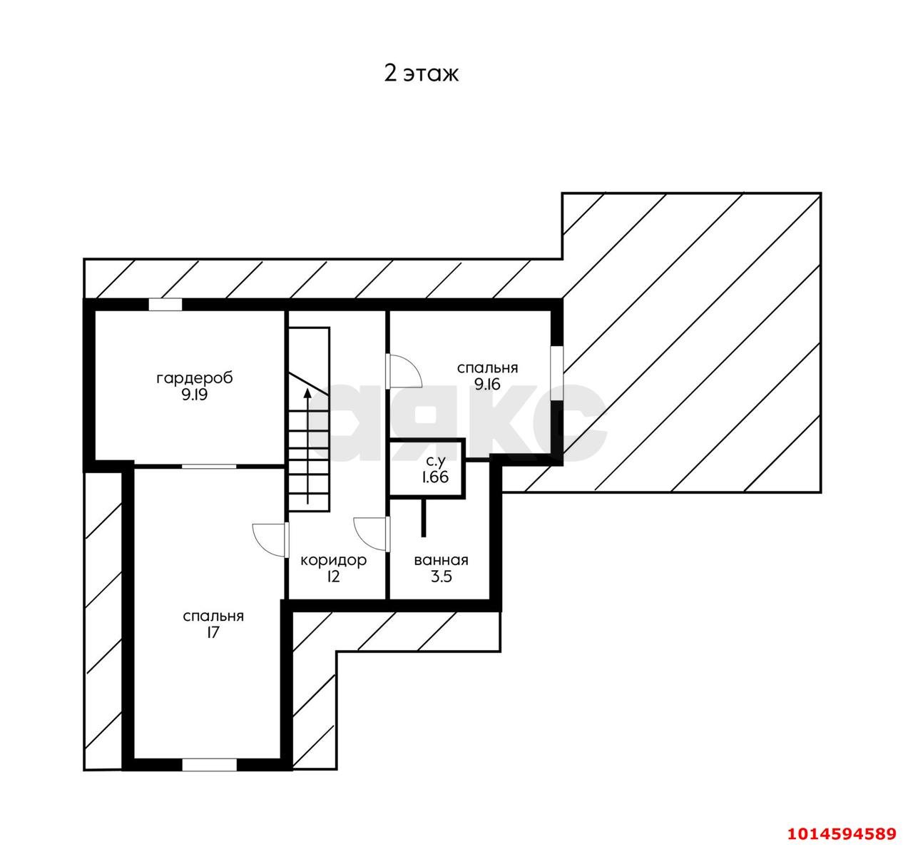
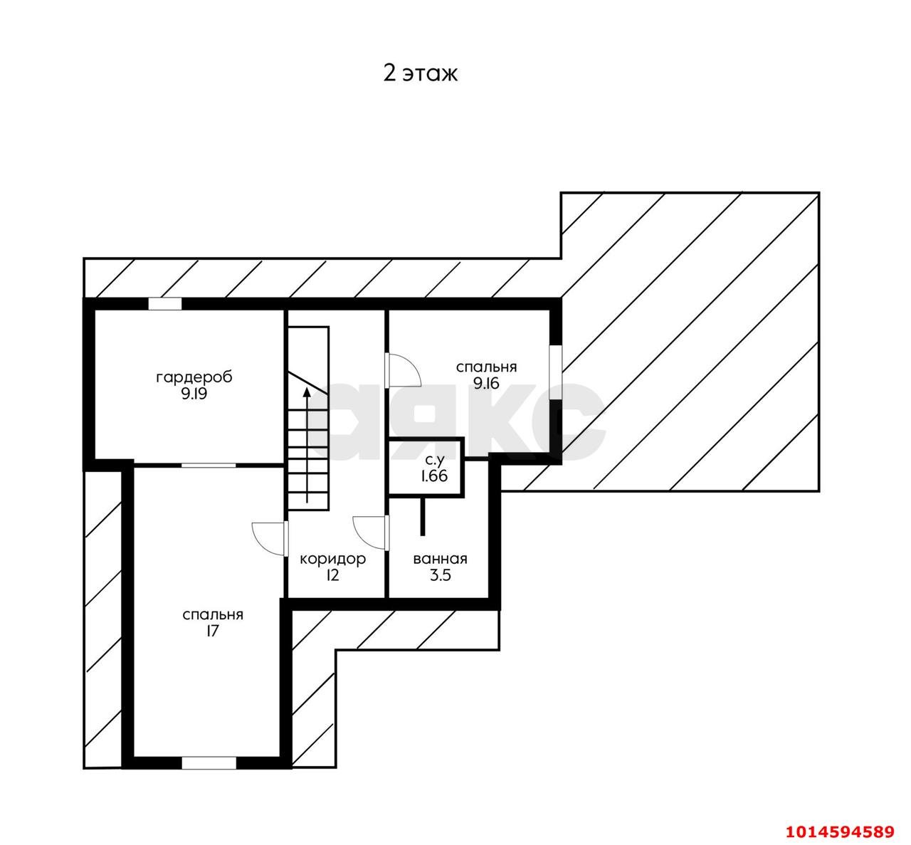
Интерес: первый этаж объединяет светлый зал с камином на пульте, кабинет и кухню-столовую с баром, винным холодильником и встроенной техникой — продуманная организация пространства для удобства семьи и приема гостей. Из кухни — выход в большой гараж на два авто и на благоустроенный задний двор с зоной барбекю, сауной-бочкой и уличным туалетом. Второй этаж — две спальни с гардеробной и сплит-системами, душевая и отдельный туалет, установлены натяжные потолки.
Жизнь становится удобнее благодаря современным инженерным решениям: трехфазное электроснабжение (15 кВт), центральный газ и водопровод, септик с возможностью подключения к центральной канализации, скоростной оптоволоконный интернет, система видеонаблюдения с камерами по периметру для безопасности семьи.
Желание: здесь каждый элемент создан для комфортного проживания. Автоматизация, встроенная техника и продуманная инфраструктура позволяют сэкономить время на бытовые задачи, уделяя больше внимания семье и отдыху. Автополив из собственной скважины сохраняет сад здоровым без лишних усилий. Всё оборудование, техника и элементы благоустройства остаются новому владельцу — переезд будет максимально легким.
Действие: редкость на рынке — сочетание большого дома, ухоженного фруктово-ягодного сада и современной инженерии в коттеджном поселке «Альпийская деревня». Приглашаем ознакомиться лично, ответим на все вопросы и организуем показ в удобное время. Звоните, чтобы узнать подробности и сделать следующий шаг к жизни для вашей семьи.
Арт.1014594589
Оставьте свой номер телефона, мы назначим время звонка и поможем принять решение