Продаем новый, кирпичный дом.
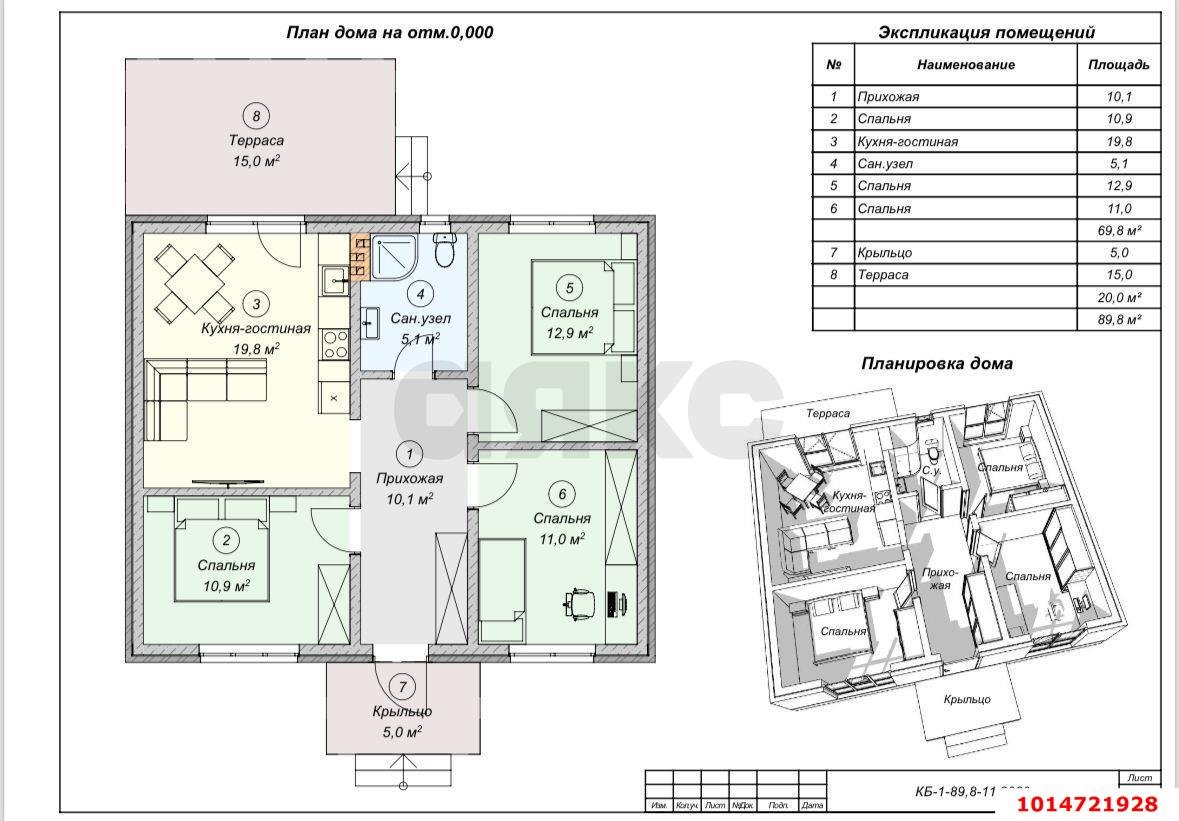
В доме три спальни, кухня-гостиная и санузел с окном. Высота конька крыши — 2,80 м, что позволяет обустроить мансардный этаж. На заднем дворе есть терраса, где можно разместить бассейн или зону барбекю.
Участок угловой, его площадь — 4,2 сотки. Дом расположен в стремительно развивающемся районе с шикарной локацией. В 100 метрах находится крупная заселённая застройка ЖК «Мельница», а в 300 метрах — клуб семейного отдыха «OZERO fish and grill» с большим бассейном, озером, рыбалкой и красивой озеленённой территорией. До ЖК «Немецкая деревня» и ЖК «Догма Парк» можно доехать за 15 минут по хорошей дороге.
Возможна продажа по семейной ипотеке.
Технические характеристики:
Фундамент: свайно-ленточный, глубина свай — 2,5 метра, диаметр — 400 мм. Ростверк — 400 мм на 600 мм. Монолитная плита перекрытия — 150 мм.
Стены: облицовка в стиле баварской кладки из керамического лицевого кирпича марки М 175.
Несущие стены: газоблок «Главстройблок» 625×250х200 марка D500.
Кровля: металлочерепица «Grand Line» 0.5 RAL 7024.
Окна: пластиковые с наружной ламинацией. Энергосберегающие стеклопакеты с лёгким напылением серебра, которое придаёт зеркальный эффект.
Дверной блок: выход на террасу — 135 мм. Хорошая входная дверь.
Забор: профнастил. Фасад забора — евроштакет.
Скважина: 32 метра.
Септик: двухкамерный, переливной.
Дом будет поставлен на кадастр перед сделкой, в зависимости от условий оплаты.
Арт.1014721928
Оставьте свой номер телефона, мы назначим время звонка и поможем принять решение