Продаётся новый двухэтажный дом, построенный в 2022 году, в посёлке Немецкая Деревня.
Дом находится на территории закрытого коттеджного посёлка Валенсия, где все дома подключены к центральным коммуникациям, включая газ. Территория посёлка полностью благоустроена. Это тихое место, но при этом рядом есть вся необходимая инфраструктура.
Дом построен с использованием качественных и экологически чистых строительных материалов. Планировка дома идеально подходит для большой и дружной семьи.
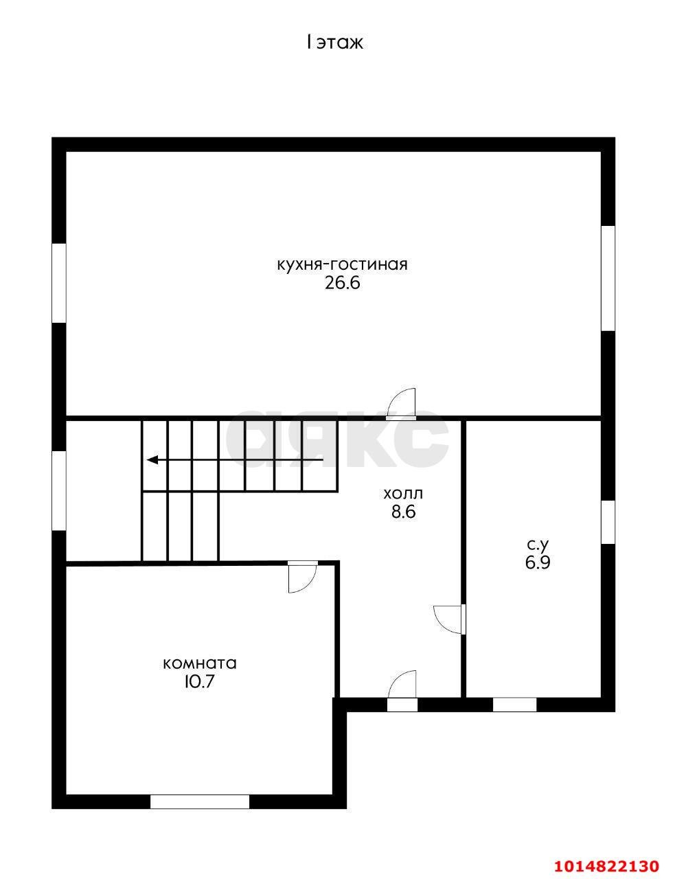
Грамотная планировка позволяет создать комфортные условия для жизни. На первом этаже расположена просторная кухня-гостиная площадью 27 м² с выходом во двор, где можно обустроить террасу для отдыха. На втором этаже находятся три спальни и второй санузел.
В доме сделан ремонт в классическом стиле, что позволяет сразу же въехать и жить.
Документы готовы к продаже. Показы возможны в любое удобное для вас время.
Арт.1014822130

Оставьте свой номер телефона, мы назначим время звонка и поможем принять решение