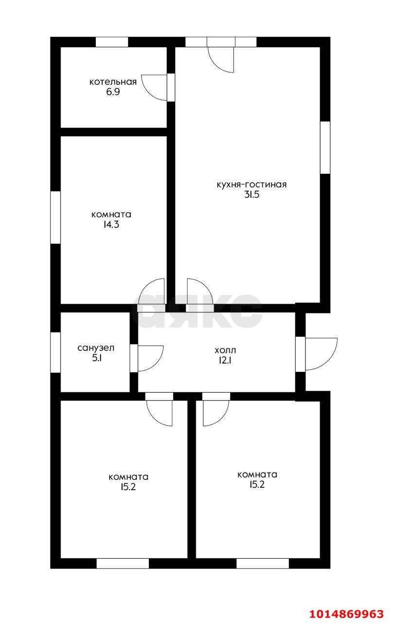
Дом 165 м² + 5 сот.
Берёзовый, Прикубанский внутригородской округ, мкр. СНТ Прогресс, ул. Солнечная, 557
9 100 000 ₽
54 919 ₽/м²
Новый прекрасный дом из керамического кирпича в СНТ "Прогресс".
Площадь 165 м2. на 5 сотках земли, высокий цоколь, отопление (котёл, радиаторы + тёплый пол по всему дому, кроме спален). Площадка из бетона, отмостка. Забор: фасад-кирпичные колонны и периметр профнастил. Большая придомовая территория. Все коммуникации: электричество, газ по меже, вода скважина, канализация (септик 4 кольца).
Удобный подъезд, широкая улица. Развитая инфраструктура.
Звоните, документы готовы к сделке! Подходит под семейную ипотеку!
Арт.1014869963
Оставьте свой номер телефона, мы назначим время звонка и поможем принять решение