Представляем вашему вниманию великолепный одноэтажный дом площадью 264,3 м² на ухоженном земельном участке 8 соток.
Это идеальное сочетание комфорта городской жизни и уединения в собственном оазисе.
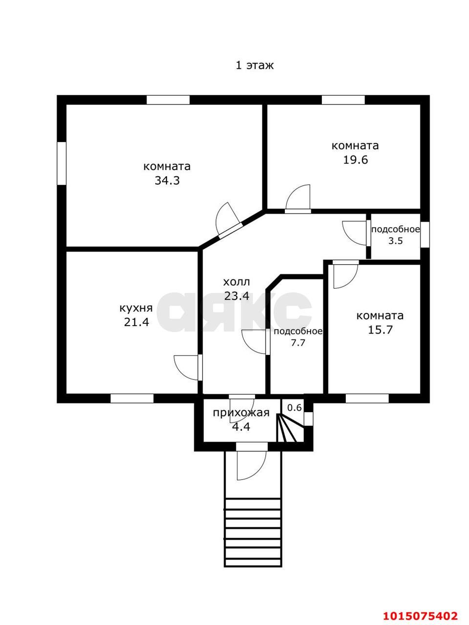
Планировка дома. Первый этаж:
Просторная кухня 21,4 м² — место, где рождаются кулинарные шедевры
Изысканная гостиная 34,3 м² — центр семейных торжеств и встреч с друзьями
Две уютные спальни 19,6 м² и 15,7 м² — пространство для спокойного отдыха
Гардеробная 3,5 м²
Ванная комната 7,7 м²
Представительский холл 23,4 м² — первое впечатление о вашем доме
Цокольный этаж:
Каминная зона 44,9 м² — идеальное место для семейных вечеров
Две дополнительные комнаты по 11 м² — возможности для творчества и отдыха
Просторный гараж 61 м² — надёжное место для вашего автомобиля
Благоустроенный участок. Территория двора представляет собой настоящий оазис спокойствия:
Взрослое озеленение с величественными елями и экзотическими пальмами
Цветущие розы создают неповторимую атмосферу уюта
Плодовые деревья дарят натуральные фрукты
Зона барбекю для незабываемых летних вечеров
Территория выложена плиткой — практичность
Зелёная зона отдыха за домом
Дом расположен в тихом спальном районе, в непосредственной близости от ключевых объектов инфраструктуры:
Город Спорта — для любителей активного образа жизни
Баскет Холл — для ценителей спорта
ТЦ «Красная площадь» — для комфортного шопинга
Звоните прямо сейчас, организую показ в удобное для вас время и отвечу на все интересующие вопросы.
Ваш идеальный дом ждёт именно вас!
Арт.1015075402

Оставьте свой номер телефона, мы назначим время звонка и поможем принять решение