Уникальное предложение в центре города Краснодара!
Мы запускаем проект по строительству современного коттеджа.
Этот проект для тех, кто хочет жить в центре города в новом доме, иметь уникальный дизайн, при это планировочное решение и отражало Ваши потребности.
Мы Вам предлагаем участок в центре города (в собственности, отмежеванный), современный проект дома в стиле «хайтэк» (есть разрешение на строительство).
Участок продается с учетом договора подряда от собственника (стоимость работ и материалов от 24 млн руб.).
Сейчас идет подготовка участка к строительству дома, на этом этапе есть возможность внести коррективы в планировку дома, учитывая Ваши индивидуальные предпочтения.
Это Ваш шанс получить премиальное жилье по цене на 20-30% ниже рыночной стоимости готового объекта.
Срок реализации проекта: 4-6 месяцев.
Основные параметры дома:
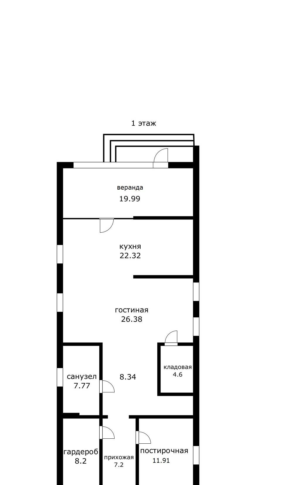
проектная площадь дома – 231,2 кв.м
площадь застройки - 147,9 кв.м
высота дома - 8,8 м
отделка – без внутренней отделки (возможна предчистовая отделка)
Смотрите планировку, жду Вашего звонка!

Оставьте свой номер телефона, мы назначим время звонка и поможем принять решение