Сдается помещение Коммерция в историческом Центре Краснодара!
Идеально под фото-студию, бизнес-тренинги, цех, склад и т.п.
ул. Гимназическая/Октябрьская.
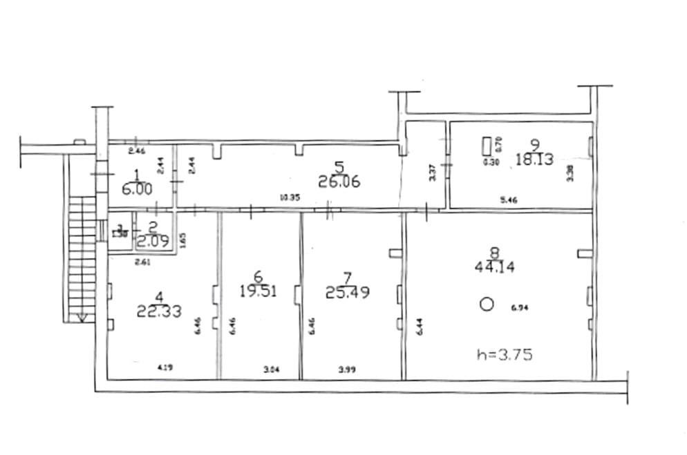
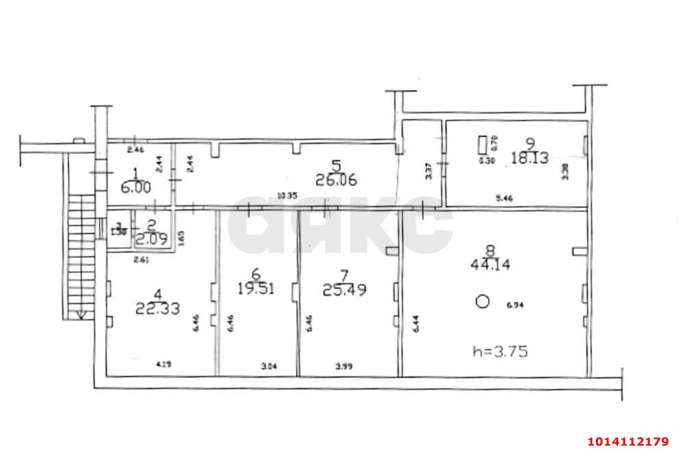
Площадь общая 165,13 кв.м.
0 Этаж: подвал, МКД.
Отдельный вход на фасад(закрытый двор) охрана, своя рекламная поверхность.
Парковка стихийная, через дорогу платная.
Высота потолков 3,75м.
Планировка свободная, свой сан.узел, необходим ремонт.
Мощность 15 кВт.
Коммуникации центральные.
Все коммунальные платежи через свою УК.
Дом бизнес класса "Бельведер", на 1м этаже расположен ресторан.
Универсально под любой вид коммерческой деятельности.
Ставка АРЕНДЫ 500 р/м2
ТОРГ долгосрочному арендатору и Каникулы на ремонт.
Без вознаграждения со стороны арендатора!
Арт.1014112179

Оставьте свой номер телефона, мы назначим время звонка и поможем принять решение