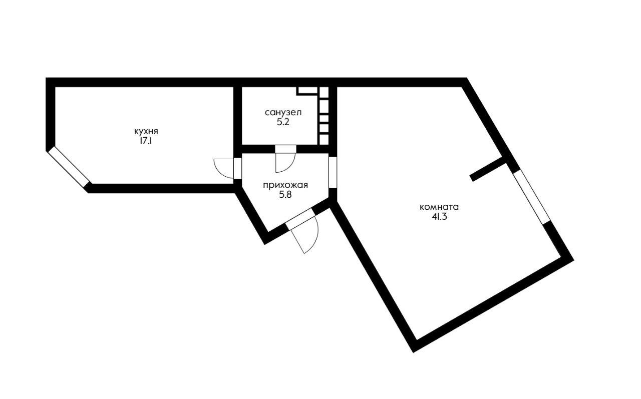
2-комнатная квартира 69 м²
Краснодар, Западный внутригородской округ, жилой комплекс Новый Город, мкр. Юбилейный, ул. Генерала Шифрина, 1
11 800 000 ₽
170 029 ₽/м²
Юбилейный микрорайон - один из самых благополучных и близко расположенных к центру районов Краснодара. Именно тут продается одна из самых уникальных квартир.
Двухкомнатная видовая квартира, где можно удачно перепланировать кухню-гостиную и роскошную спальню с витражом в пол. Потолки 3,1 метра добавляют воздуха и пространства квартиру. А последний жилой этаж обеспечивает приватность и изолированность от соседей.
Лифт спускается в подземную парковку. Возле дома школа, гимназия, несколько детских садов и набережная реки Кубань.
Звоните, чтобы записаться на показ.
Арт.1012623153
Оставьте свой номер телефона, мы назначим время звонка и поможем принять решение