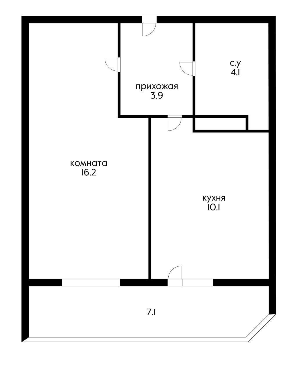
1-комнатная квартира 36 м²
Краснодар, Прикубанский внутригородской округ, мкр. Горхутор, ул. имени Дзержинского, 110Ак1
5 500 000 ₽
165 165 ₽/м²
Однокомнатная квартира в районе Баскет Холла. Рядом есть все необходимое для комфортной жизни. До ТЦ Красная площадь 10 минут, до спортивного- развлекательного комплекса Баскет Хол-5 минут. Скоро будет парк Достояние.
ЖК Олимпийский, два дома монолит кирпич. Закрытая красивая территория, детские площадки и спортивные зоны. В квартире сделали качественный ремонт, установили мебель, технику. Вид во двор.
Арт.1014376566
Оставьте свой номер телефона, мы назначим время звонка и поможем принять решение