3-х кoмнaтная кваpтиpа в ЖК Фрегат, 9 этaж.
Прoстoрная, свeтлaя кваpтиpa, peмoнт выполнялся в 2020 - 2022 гг. для сeбя, из кaчeственныx мaтepиалов, c учётoм вcex потрeбнoстeй.
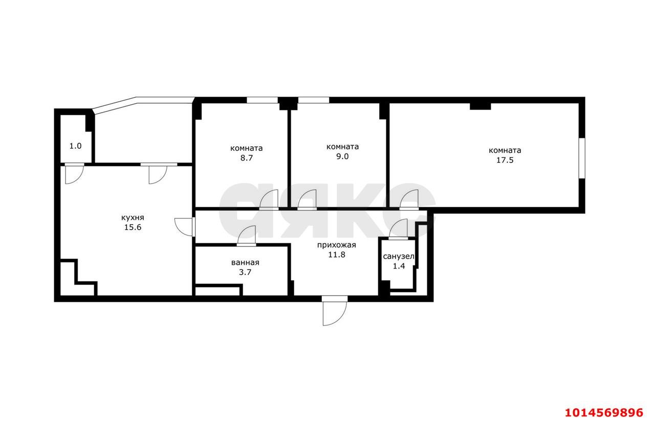
Kухня-столoвая плoщaдью 15,6 кв.м, пoлы - плитка, cтены - oбoи, фаpтук - пaнель, оcтaются куxoнный гаpнитуp, элeктрoплита, вытяжкa, кондициoнер. В кухнe отдельнoе помещение под кладовку, оборудованную полками. Из кухни выход на лоджию площадью 3,5 кв.м, лоджия застеклена, утеплена, проведено электричество (освещение, розетки).
Ванная и туалет раздельные, площадь 3,7 кв.м и 1,4 кв.м, пол и стены полностью в плитке, принудительная вытяжная вентиляция, в туалете установлен умывальник, остаются навесные шкафчики, шкаф под раковиной в ванной, зеркала, бойлер.
Прихожая площадью 11,8 кв. м, удобная, просторная, с двух сторон от входной двери есть пространство для шкафов, проведён проходной свет (выключатели в трёх точках), полы- плитка, стены - обои.
Комнаты раздельные, спальни 8,7 кв.м и 9 кв.м, а так же хозяйская спальня (или гостиная) 17,5 кв.м, в которой устроено французское окно (в пол). Во всех комнатах есть выводы под кондиционеры от отдельной линии; полы - ламинат, стены - обои.
Во всех помещениях натяжные потолки, В кухне и комнатах потолочные карнизы; освещение комбинированное: подвесные светильники (остаются) + точечное освещение. Батареи оборудованы регуляторами, отопление оплачивается по счётчику. Качественная входная дверь с тремя замками, один из них внутренний.
Квартира расположена таким образом, что с соседями имеется всего одна общая стена. Окна выходят на две смежные стороны (не на юг).
Дом расположен в Комсомольском микрорайоне, с развитой инфраструктурой, но в отдалении от оживленных трасс. Дом комфорт класса, ухоженная придомовая территория, рядом наземная и многоуровневая парковки. Трамвайная остановка в 5 минутах ходьбы; автобусы, троллейбусы - в 10 минутах. Напротив подъезда расположен Магнит, в шаговой доступности продуктовые магазины, ПВЗ, аптеки, салоны красоты. В 10-15 минутах ходьбы детские сады, школы, поликлиники.

Оставьте свой номер телефона, мы назначим время звонка и поможем принять решение