Продаю четырёхкомнатную квартиру в центре Краснодара, напротив Чистяковской рощи.
Квартира находится в районе, с самой удобной транспортной доступностью. Рядом с домом остановка общественного транспорта, включая трамвай, это позволит быстро добраться в любую точку Краснодара.
Добротный кирпичный дом с высокими потолками, в этом году сделан кап.ремонт, полностью заменена кровля.
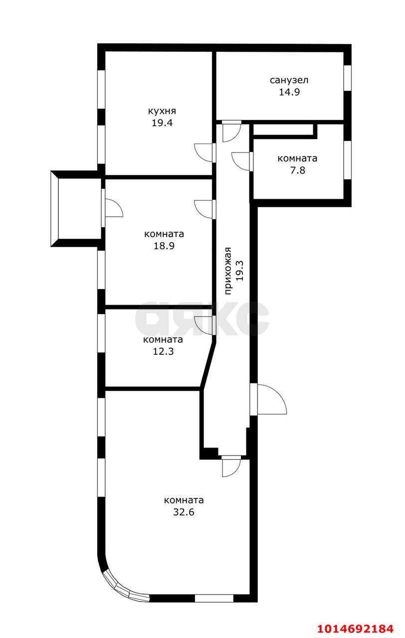
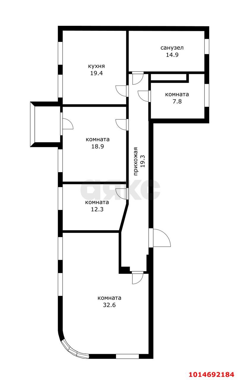
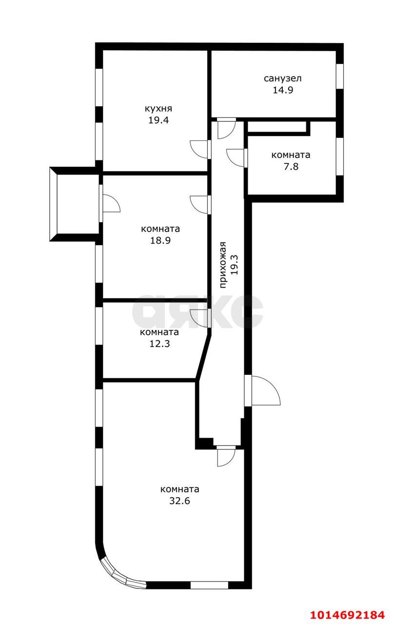
В квартире 4 изолированные комнаты, большой санузел и кухня.
Установлен двухконтурный котел, который позволяет самостоятельно регулировать отопление и горячую воду.
В пешей доступности большое количество детских садов, школ, поликлиник и торговых центров.
Чистяковская роща через дорогу — идеальное место для прогулок в любое время года.
Удобные подъездные пути, что делает район привлекательным для автомобилистов.
Если вы ищете просторную квартиру в удобном районе с развитой инфраструктурой, это отличный вариант!
Звоните, нужно смотреть.
Арт.1014692184
Оставьте свой номер телефона, мы назначим время звонка и поможем принять решение