Продам стильную квартиру формата open space, выполненную по индивидуальному дизайн-проекту. В ЖК Тургенев
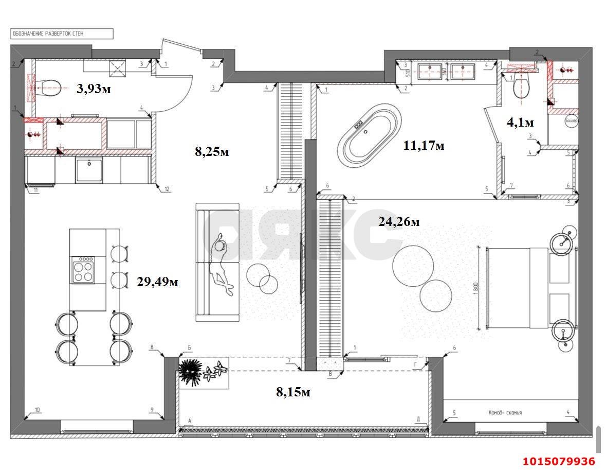
Максимально открытая планировка - перегородки демонтированы, пространство продумано до мелочей. Каждая зона функциональна и визуально гармонична.
Мастер-спальня с отдельно стоящей ванной - решение в духе премиальных европейских интерьеров.
Отделка выполнена из дорогих материалов: стены окрашены краской, пол — микроцемент, потолки — комбинация гипсокартона и натяжных полотен с тепло- и шумоизоляцией.
Кухня
- Фасады окрашены
- Столешница и фартук выполнены из цельного листа керамогранита
- Функциональный остров со встроенным винным шкафом
- Индукционной плитой с бриджем и сенсорным управлением
- Потолочной вытяжкой Faber
- Полноразмерный холодильник, мойка из нержавейки, духовой шкаф и микроволновка
- Магнитная трек-система освещения и подсветка в парящем потолке.
Ванная зона оформлена в скандинавском стиле:
- Отдельно стоящая ванна из литьевого мрамора
- Две раковины, зеркало с подсветкой и встроенный шкаф.
Одна из стен облицована керамогранитом. Установлена система гидроблок с датчиками протечки, автоматически перекрывающая воду, бойлер и продуманная вентиляция.
В спальне - кровать 180×200, встроенная мебель из шпона натурального дерева, рабочая зона и раздвижные двери с затемнением.
Установлены два инверторных кондиционера.
ЖК «Тургенев» - один из самых узнаваемых комплексов Краснодара:
Подземная и наземная парковка
Видеонаблюдение и круглосуточная охрана
На стилобате - рестораны, кофейни, студии красоты и магазины
Всё, что нужно для комфортной жизни, - в пешей доступности!
Квартира полностью готова к проживанию.
Современный интерьер, премиальные материалы и внимание к каждой детали - таких вариантов на рынке единицы.
Звоните !
Арт.1015079936
Оставьте свой номер телефона, мы назначим время звонка и поможем принять решение