Дом 333 м² + 8 сот.
Краснодар, Прикубанский внутригородской округ, Калинино, мкр. Завод Радиоизмерительных Приборов, ул. Астраханская, 33
45 000 000 ₽
135 095 ₽/м²
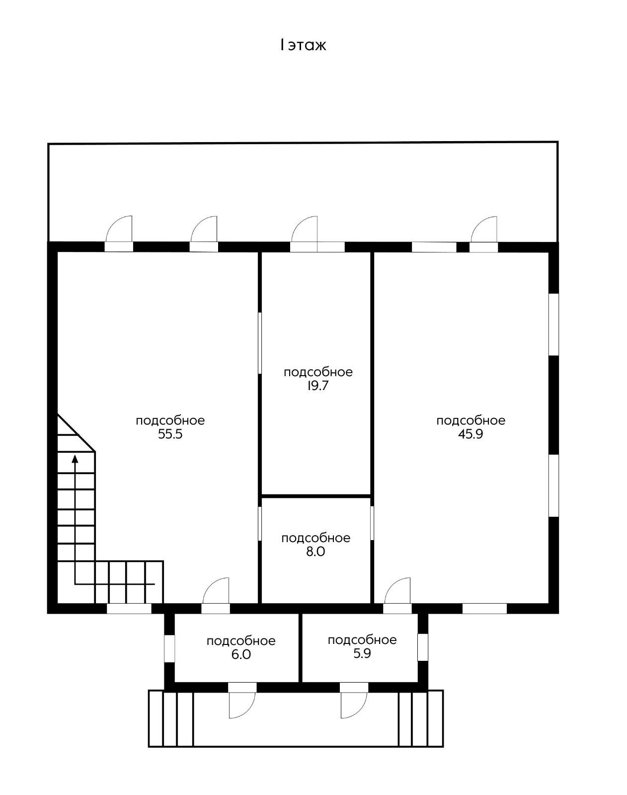
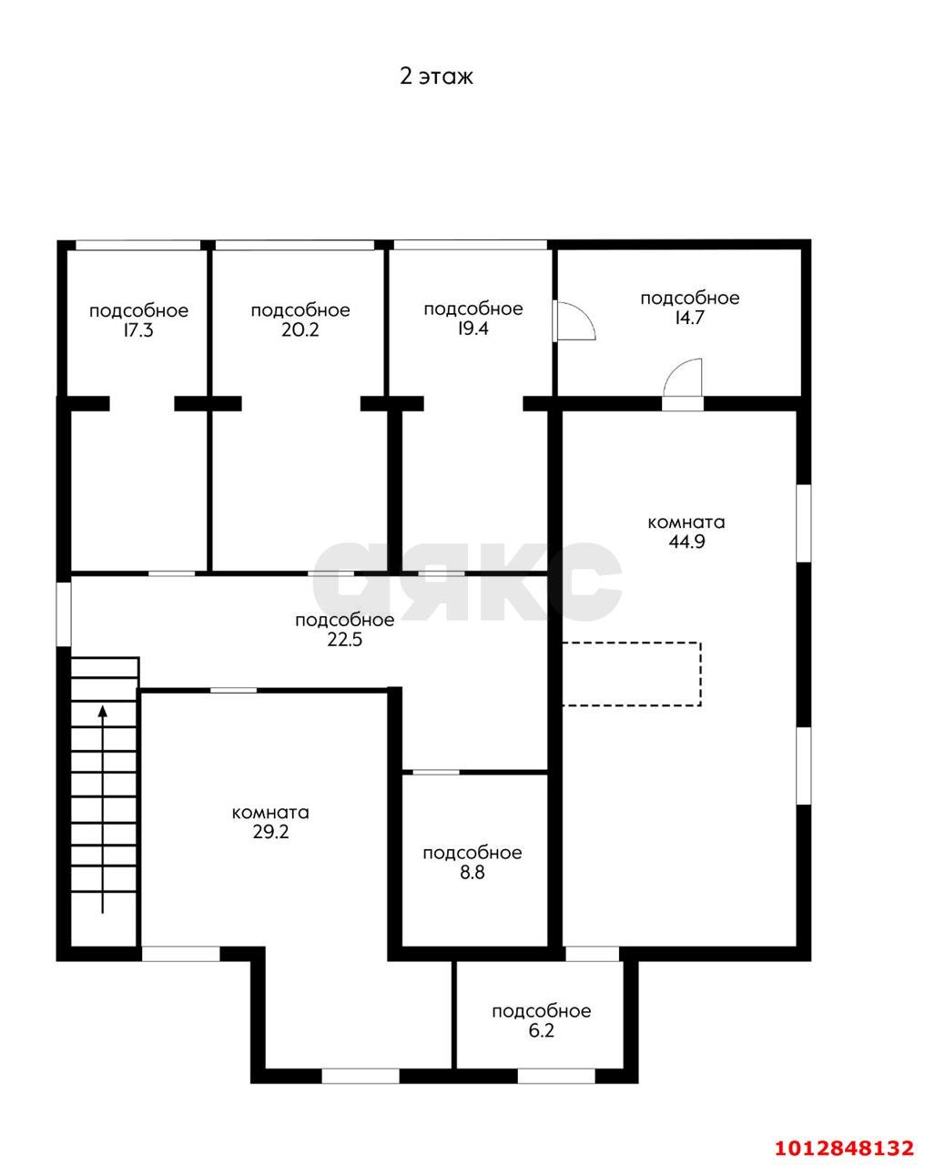
Продается отличный трехэтажный кирпичный дом!
Хороший ремонт, мебель и техника остается новому хозяину. На первом этаже огромная гостиная для большой семьи и друзей. В доме 5 спален, просторная кухня, оборудованная всей необходимой техникой и мебелью. Подключены все необходимые коммуникации.
Из гостиной вы выходите на открытую террасу с видом на участок и бассейн.
Дом расположен на большом, ровном участке, есть вьезд для автомобиля, и место для парковки перед двором.
Живописный, тихий район. Рядом находится школа, больница, все необходимые магазины.
Звоните!
Арт.1012848132

Офис на Московской
+7 (989) 120-58-12Оставьте свой номер телефона, мы назначим время звонка и поможем принять решение