Продаётся уникальный участок с двумя домами в центральном районе Краснодара (Дубинка, район Черёмушки).
Предлагается к продаже просторный участок площадью 7,22 сотки, расположенный в одном из самых развитых и удобных для жизни районов города.
Отличное расположение:
Центральный район (Дубинка / Черёмушки)
Широкая асфальтированная дорога
Участок с двумя выездами на параллельные улицы: ул. Пугачёва и ул. Полины Осипенко
В шаговой доступности: гимназии, школы, детские сады, КубГУ, поликлиники, торговые центры
-На участке расположены два капитальных кирпичных дома:
Дом №1 — 733 м² (с цоколем и мансардой)
-Толстые кирпичные стены, просторные помещения
-Предчистовая отделка, выполнены:
-разводка электричества
-система отопления
Планировка:
-Цоколь: гараж 87 м², котельная, 2 санузла, 2 комнаты
-1 этаж: гостиная 84 м² с камином, кухня, 2 комнаты, санузел
-2 этаж: 4 комнаты (2 из них с собственными санузлами), дополнительный санузел
-Мансарда: 146 м² (по проекту — бильярдная)
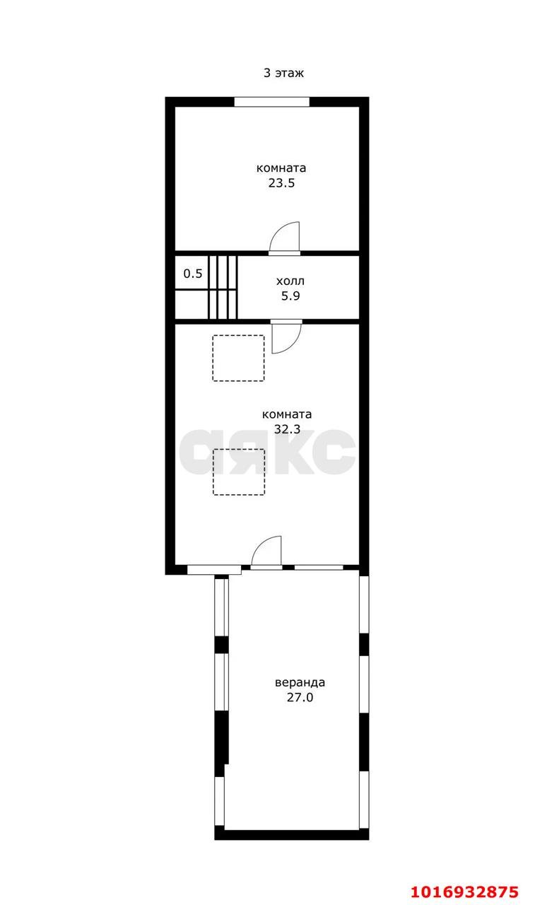
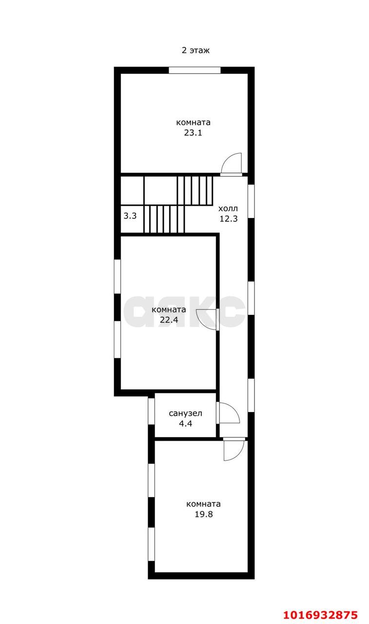
Дом №2 — 235 м² (с мансардой)
Полностью кирпичный, удобная планировка
Планировка:
-1 этаж: гараж 25 м², кухня, 2 комнаты, санузел
-2 этаж: 3 комнаты, санузел
-Мансарда: веранда 27 м² + 2 комнаты
Дополнительные преимущества:
-Въезд на территорию для нескольких автомобилей
-Уютная беседка с мангальной зоной
-Возможность проживания большой семьи или нескольких поколений
- Подходит также под мини-гостиницу, небольшую клинику, частный детский сад, частный бизнес или аренду.

Оставьте свой номер телефона, мы назначим время звонка и поможем принять решение